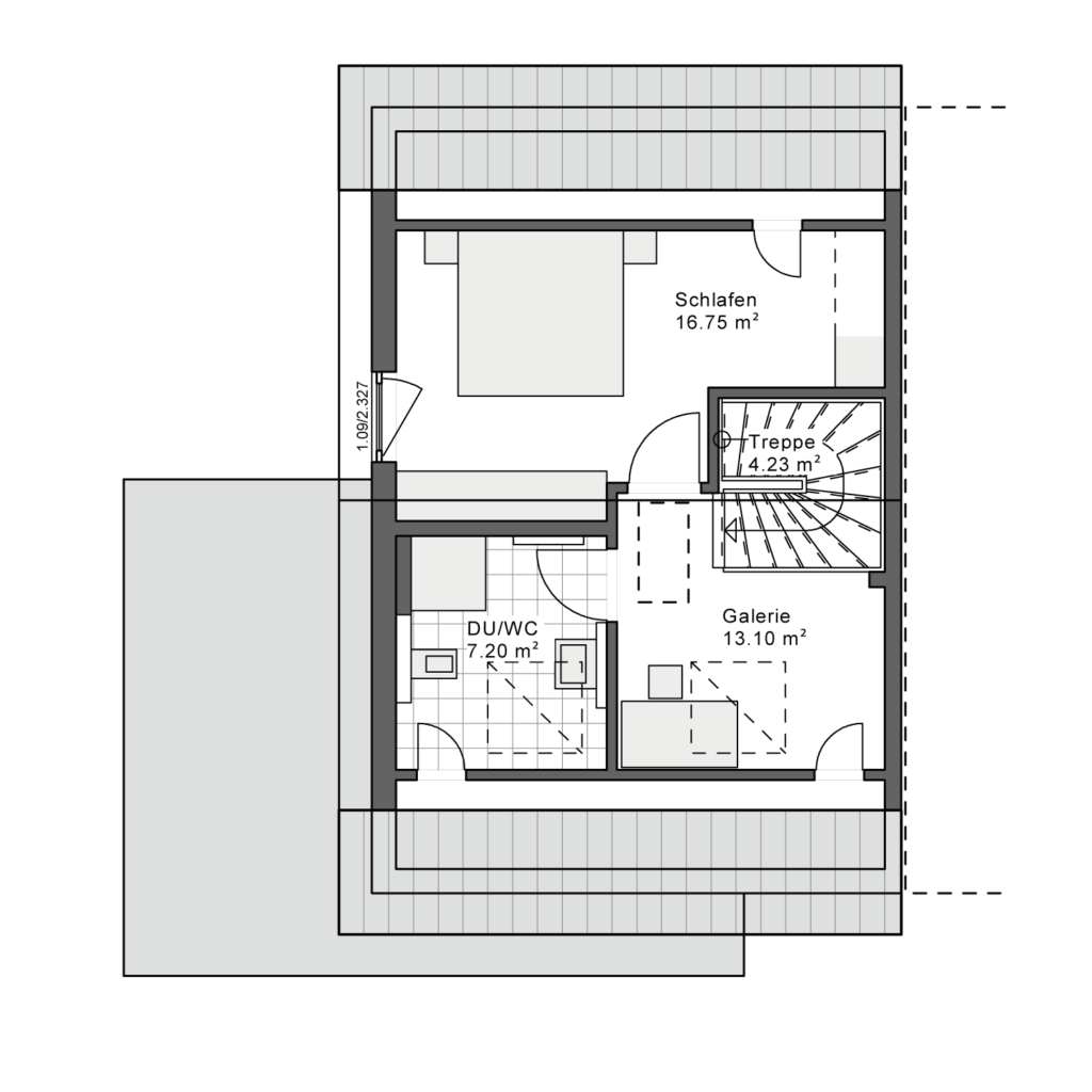
Objektdaten
Objektbeschreibung
FEELS LIKE HOME. LOOKS LIKE YOU.Ein Zuhause, das deine Handschrift trägt - individuell, durchdacht und bezahlbar. Dein Traum vom Eigenheim ist näher, als du denkst. Warum warten? START YOUR HOME JOURNEY TODAY.Ähnliche Angebote
So funktioniert es
- Alle neuen Anzeigen matchen wir kostenlos mit Deinen Suchparametern.
- Passende Angebote senden wir Dir in einer E-Mail pro Tag.
- Du kannst auch verschiedene Suchen anlegen und Dich jederzeit abmelden. Mehr dazu




