Objektdaten
Objektbeschreibung
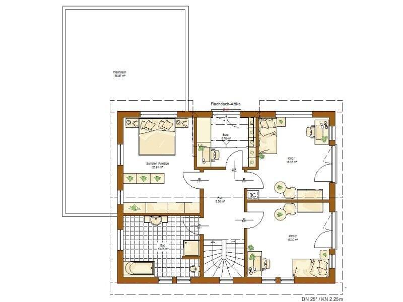
Zwei moderne Architekturtrends verbinden sich auf beeindruckende Art und WeiseDas Haupthaus mit hohem Kniestock, mit flach geneigtem Satteldach in Kombination mit einem kubischen Anbau, prägt das moderne Erscheinungsbild des Hauses Savona. Im Flachdachanbau befindet sich die ca. 50 m² große Einliegerwohnung. Ein gemeinsamer Eingangsbereich verbindet die beiden Wohnungen.Die Hauptwohnung mit weiteren 150 m² Wohnfläche macht den Großteil des Erdgeschosses aus. Dazu gehört auch das gesamte Dachgeschoss, erreichbar über die Holztreppe in der Diele. Die Wohnräume befinden sich im Erdgeschoss, während die Schlafräume, das Familienbad sowie ein zusätzliches Büro in der Etage darüber angeordnet sind.Die moderne Interpretation von Satteldacharchitektur mit drittem Giebel in Flachdachoptik schafft eine besonders harmonische und beeindruckende Verbindung zum kubischen Anbau.So funktioniert es
- Alle neuen Anzeigen matchen wir kostenlos mit Deinen Suchparametern.
- Passende Angebote senden wir Dir in einer E-Mail pro Tag.
- Du kannst auch verschiedene Suchen anlegen und Dich jederzeit abmelden. Mehr dazu




