Kaufpreis 561.110 €
Zimmer 5
Größe 194 m²
72175 Dornhan
Objektdaten
Veröffentlicht am: 29. Januar 2026
Energieausweis: Liegt bei der Besichtigung vor
Danke! Bitte bestätige Deine E-Mail-Adresse – wir haben Dir soeben eine Mail geschickt.
Es gab ein Problem beim Absenden. Bitte versuche es erneut.
Bitte bestätige Deine E-Mail-Adresse, um Updates zu erhalten.
Objektbeschreibung
Objektbeschreibung
Der Kaufpreis setzt sich zusammen aus: Hauspreis mit Keller: 432.410,00 €Grundstück: ca. 68.700,00 €Baunebenkosten: ca. 60.000,00 €Viel Wohnraum für die ganze Familie - Hier kann man leben und sich wohlfühlen - im Doppelhaus Duett 125 fehlt es an nichts! Auch optisch ist das Doppelhaus Duett 125 ein echter Hingucker. Die moderne, gradlinige Architektur überzeugt und bei der Fassadengestaltung können farbliche Akzente gesetzt werden. Das Duett 125 eignet sich auch für kleine Grundstücke, da es die vorhandene Grundstücksfläche optimal ausnutzt und trotzdem viel Wohnraum für zwei Familien bietet.
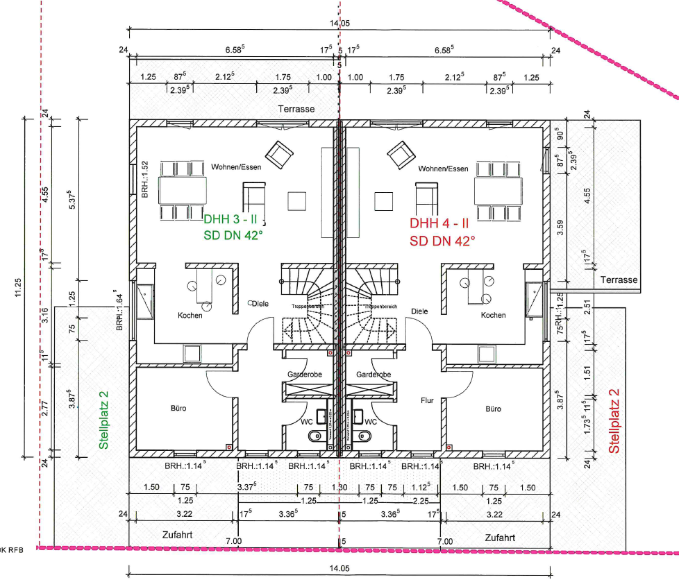
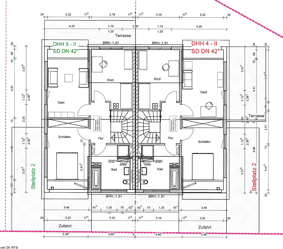
Raumaufteilung
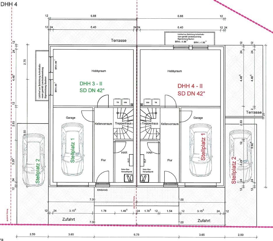
Die Netto-Raumfläche setzt sich wie folgt zusammen:KG 67,49 m²EG 65,70 m²DG 61,70m²Das geplante Haus ist mit einem Keller ausgestattet, der eine Garage, einen Hauswirtschaftsraum, einen Hobbykeller und einen Flur beinhaltet.So haben Sie die Möglichkeit, direkt von der Garage über die Treppe in das Haus zu gelangen.Ein offener, heller Wohn- und Essbereich ist der Mittelpunkt des Hauses. Hier trifft sich die Familie zum gemeinsamen Frühstücken oder für gemütliche TV-Abende. Auch in der geräumigen Küche gibt es eine kleine Essecke, von der aus beim Kochen zugeschaut werden kann. Ein Highlight ist der separate Garderobenbereich, der im Flur für Ordnung sorgt.Im Obergeschoss sorgen die Zwerchgiebel mit Flachdachgaube für mehr Komfort. So wird aus dem vollgeschossigen Bad eine richtige Wohlfühloase und auch im gemütlichen Kinderzimmer stören keine Dachschrägen. Bodentiefe Fenster lassen viel Licht und Helligkeit ins Gäste- und Elternschlafzimmer.Alle Pläne (Grundrisse) können individuell an Ihre Wünsche angepasst werden.
So funktioniert es
- Alle neuen Anzeigen matchen wir kostenlos mit Deinen Suchparametern.
- Passende Angebote senden wir Dir in einer E-Mail pro Tag.
- Du kannst auch verschiedene Suchen anlegen und Dich jederzeit abmelden. Mehr dazu
Wir haben soeben eine E-Mail mit Deinem Suchauftrag an Dich geschickt. – Klicke in dieser Mail auf den Bestätigungslink und schon geht's los. Prüfe ggf. auch Deinen Spamordner.
Es gab ein Problem beim Absenden Deiner E-Mail-Adresse. Bitte versuche es erneut.
WARNUNG: Bitte bestätige Deine E-Mail-Adresse, um regelmäßige Updates zu erhalten.