Objektdaten
Objektbeschreibung
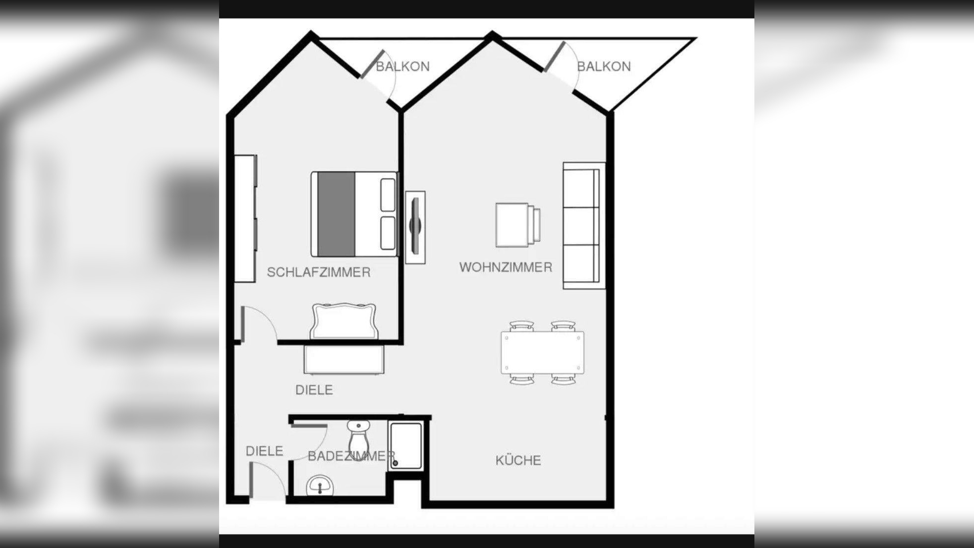
Wir bieten Ihnen eine 2-Zimmer-Wohnung in gut gepflegtem Zustand in Leimen. Die Wohnung betretend kommt man rechts direkt ins innen liegende Badezimmer mit Dusche. Linker Hand führt eine Tür ins Schlafzimmer mit Balkon. Dem Flur folgend kommt man in den groß angelegten Wohn-, Ess- und Küchenbereich. Angegliedert ist ein schöner überdachten zweiter Balkon.Das bestehende Mietverhältnis wurde vom Mieter zum 31.05.2026 gekündigt. Somit besteht die Möglichkeit der Eigennutzung oder Neuvermietung.So funktioniert es
- Alle neuen Anzeigen matchen wir kostenlos mit Deinen Suchparametern.
- Passende Angebote senden wir Dir in einer E-Mail pro Tag.
- Du kannst auch verschiedene Suchen anlegen und Dich jederzeit abmelden. Mehr dazu




