Kaufpreis 410.900 €
Zimmer 5
Größe 141 m²
08525 Plauen
Objektdaten
Veröffentlicht am: 3. Februar 2026
Baujahr: 2026
Energieausweis: Liegt bei der Besichtigung vor
Danke! Bitte bestätige Deine E-Mail-Adresse – wir haben Dir soeben eine Mail geschickt.
Es gab ein Problem beim Absenden. Bitte versuche es erneut.
Bitte bestätige Deine E-Mail-Adresse, um Updates zu erhalten.
Objektbeschreibung
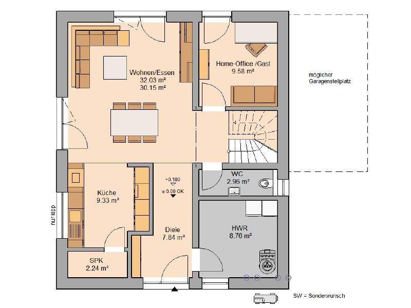
Das Familienhaus Jara bietet mit rund 140 m² Wohnraum für die ganze Familie. Es definiert Lebensfreude neu.Das Erdgeschoss erstreckt sich über 70 m². Aufgeteilt ist es in einen großen Wohn- und Essbereich mit offener Küche und Speisekammer, ein WC, Diele und ein Home-Office, welches alternativ auch als Gästezimmer genutzt werden kann. Der Hauswirtschaftsraum befindet sich ebenfalls im Erdgeschoss und lässt sich über die Diele betreten. Eine u-förmige Treppe führt ins Dachgeschoss, welches über drei Schlafzimmer, eine Ankleide und ein großes Familienbad verfügt. Erreichbar sind alle Räume über den Flur. Zu dem Elternschlafzimmer zählt eine ganz persönliche Ankleide. Das Massivhaus Jara schafft somit ein Refugium, welches jedem Familienmitglied seinen ganz persönlichen Raum ermöglicht.Dieses Haus wird nach Ihren individuellen Wünschen geplant und ausgestattet!
So funktioniert es
- Alle neuen Anzeigen matchen wir kostenlos mit Deinen Suchparametern.
- Passende Angebote senden wir Dir in einer E-Mail pro Tag.
- Du kannst auch verschiedene Suchen anlegen und Dich jederzeit abmelden. Mehr dazu
Wir haben soeben eine E-Mail mit Deinem Suchauftrag an Dich geschickt. – Klicke in dieser Mail auf den Bestätigungslink und schon geht's los. Prüfe ggf. auch Deinen Spamordner.
Es gab ein Problem beim Absenden Deiner E-Mail-Adresse. Bitte versuche es erneut.
WARNUNG: Bitte bestätige Deine E-Mail-Adresse, um regelmäßige Updates zu erhalten.