Kaufpreis 210.000 €
Zimmer 2
Größe 75 m²
96135 Stegaurach
Objektdaten
Veröffentlicht am: 22. Februar 2026
Energieausweis: Liegt bei der Besichtigung vor
Danke! Bitte bestätige Deine E-Mail-Adresse – wir haben Dir soeben eine Mail geschickt.
Es gab ein Problem beim Absenden. Bitte versuche es erneut.
Bitte bestätige Deine E-Mail-Adresse, um Updates zu erhalten.
Objektbeschreibung
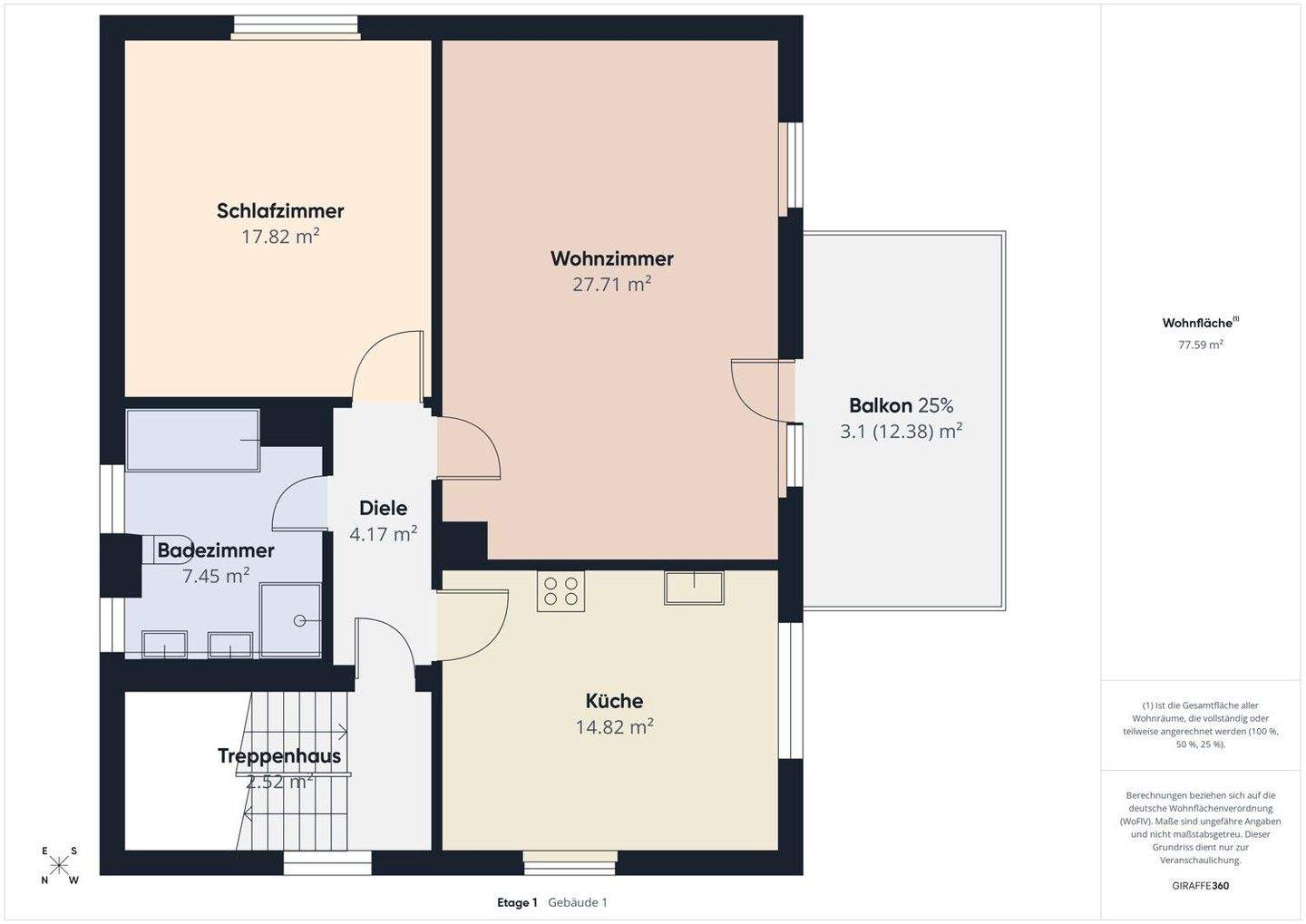
Diese charmante Etagenwohnung mit einer Wohnfläche von ca. 75 m² befindet sich in einem gepflegten Gebäude aus dem Jahr 1957 und vereint auf harmonische Weise klassischen Wohncharme mit modernen Ausstattungsdetails. Zwei helle und großzügig geschnittene Zimmer stehen zur Verfügung und eignen sich ideal für Paare, Singles oder einen kleinen Haushalt. Neben dem Wohnbereich bietet ein gut proportioniertes Schlafzimmer ausreichend Platz für eine individuelle Einrichtung. Das Badezimmer ist mit einer Badewanne sowie einer separaten Dusche ausgestattet und bietet somit hohen Alltagskomfort. Besonders angenehm ist die im Badezimmer sowie im Flur installierte Fußbodenheizung, die für eine behagliche Wärme sorgt. In den übrigen Räumen sind klassische Heizkörper vorhanden. Die Beheizung des Hauses erfolgt über eine Ölheizung.Die großzügige Küche mit integriertem Essbereich bietet viel Raum für gemeinsame Kochabende, gesellige Runden mit Freunden oder entspannte Mahlzeiten im Alltag. Hier verbinden sich Funktionalität und Wohnlichkeit auf angenehme Weise.Ein weiteres Highlight ist der Balkon, der zusätzlichen Freiraum im Außenbereich schafft. Ob ein Kaffee am Morgen oder ein entspannter Tagesausklang - hier genießen Sie Ihre persönliche Auszeit.Abgerundet wird dieses attraktive Angebot durch einen eigenen Kellerraum, der praktischen Stauraum bietet, sowie einen Stellplatz, der Ihnen eine komfortable Parksituation ermöglicht.In den vergangenen Jahren wurden verschiedene Modernisierungsmaßnahmen am Gebäude vorgenommen, darunter Arbeiten am Dach, an der obersten Geschossdecke sowie ein Austausch der Fenster. Dadurch präsentiert sich die Immobilie in einem gepflegten und zeitgemäßen Zustand, während sie zugleich Raum für individuelle Gestaltungsideen lässt.Energieausweist ist beantragt.
So funktioniert es
- Alle neuen Anzeigen matchen wir kostenlos mit Deinen Suchparametern.
- Passende Angebote senden wir Dir in einer E-Mail pro Tag.
- Du kannst auch verschiedene Suchen anlegen und Dich jederzeit abmelden. Mehr dazu
Wir haben soeben eine E-Mail mit Deinem Suchauftrag an Dich geschickt. – Klicke in dieser Mail auf den Bestätigungslink und schon geht's los. Prüfe ggf. auch Deinen Spamordner.
Es gab ein Problem beim Absenden Deiner E-Mail-Adresse. Bitte versuche es erneut.
WARNUNG: Bitte bestätige Deine E-Mail-Adresse, um regelmäßige Updates zu erhalten.