Objektdaten
Objektbeschreibung
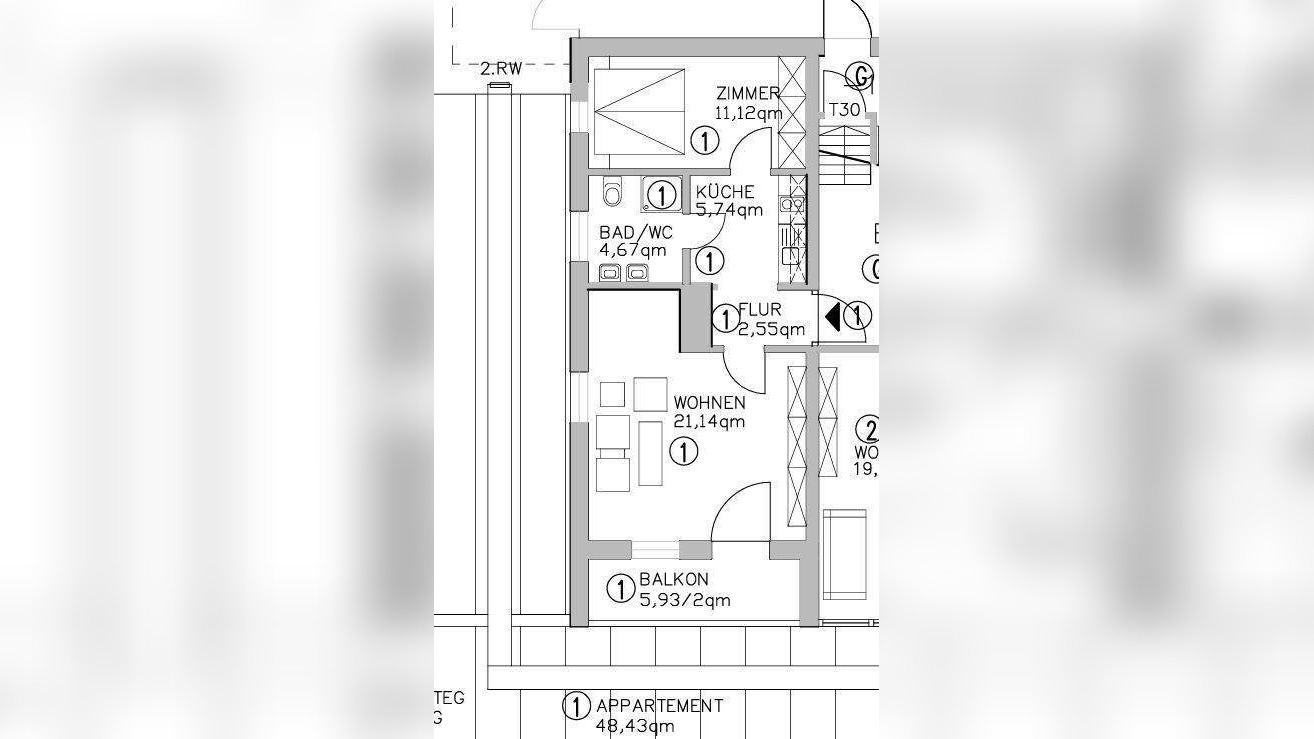
Diese einladende 2-Zimmer-Wohnung im Erdgeschoss überzeugt durch eine funktionale Raumaufteilung und eine gepflegte Ausstattung. Die Kombination aus pflegeleichten Laminatböden in den Wohnräumen und hellen Fliesen in den Funktionsbereichen schafft ein behagliches Wohnambiente. Eine bereits vollständig eingerichtete Einbauküche ist vorhanden und im Angebot enthalten. Erholung im Freien: Der eigene Balkon lädt zu entspannten Stunden an der frischen Luft ein. Die Wohnung ist derzeit zuverlässig für eine Kaltmiete von 600,00 € vermietet. Dies macht das Objekt zu einer attraktiven und soliden Kapitalanlage in einer gefragten Lage. Ob als sicheres Investment oder zur späteren Eigennutzung – diese Immobilie bietet Ihnen vielfältige Möglichkeiten.So funktioniert es
- Alle neuen Anzeigen matchen wir kostenlos mit Deinen Suchparametern.
- Passende Angebote senden wir Dir in einer E-Mail pro Tag.
- Du kannst auch verschiedene Suchen anlegen und Dich jederzeit abmelden. Mehr dazu




