Objektdaten
Objektbeschreibung
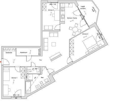
Highlights zur Wohnung:- praktischer, durchdachter Grundriss- edles Echtholzparkett mit Fußbodenheizung- größtenteils bodentiefe Fenster mit Rollläden und Dreifachverglasung- Bad mit Wanne und Dusche- Gäste-WC - Marken-Armaturen- Handtuchheizkörper im Bad- Abstellkammer in der Wohnung - Balkon zum Entspannen im Freien - Videosprechanlage- Aufzug für barrierefreies Erreichen der Wohnung- optionaler Tiefgaragenstellplatz- begrünter Innenhof mit Spielplatz, Fahrradstellplätzen und Ruhezonen- Läden im ErdgeschossBitte beachten Sie, dass wir einen unbefristeten Mietvertrag mit Indexmietvereinbarung schließen.Besuchen Sie gern unsere Projektwebsite und finden Sie die perfekte Wohnung für Ihre Bedürfnisse: atrium-quartier.buwog.comÄhnliche Angebote
So funktioniert es
- Alle neuen Anzeigen matchen wir kostenlos mit Deinen Suchparametern.
- Passende Angebote senden wir Dir in einer E-Mail pro Tag.
- Du kannst auch verschiedene Suchen anlegen und Dich jederzeit abmelden. Mehr dazu





