Objektdaten
Objektbeschreibung
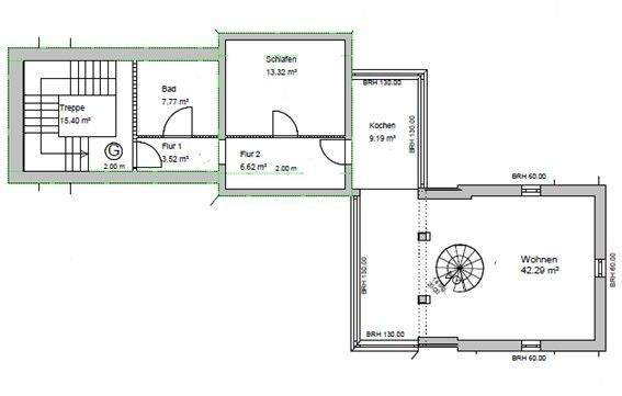
Die Penthouse Suite des Usedom Palace erstreckt sich im Dachgeschoss über 2 Etagen und bietet im Studio und auf der 360° Dachterasse einen Rundblick auf die Ostsee sowie das gesamte Umland. Das im Stile einer Admiralskajüte und mit Essecke ausgestaltete Wohnzimmer geht fließend in die offene Küche mit einem unvergleichlichen Meeresblick über. Vom Flur geht ein Schlafzimmer und ein großzügiges Badezimmer mit Doppelwaschtisch aus Marmor und Dusche ab. Flur, Schlafzimmer und Badezimmer besitzen in der Dachschräge befindliche Fenster, die elektrisch betätigt werden. Die voll möblierte und mit allen gängigen Einrichtungsgegenständen ausgesttatete Penthouse Suite weist einen der Herstellung in 1999/2000 entsprechenden Standard auf. Der Käufer erhält hier die seltene Gelegenheit, eine einzigartige Immobilie in erstklassiger Lage zu einem attraktiven Sonderpreis zu erwerben – ideal als exklusiver Rückzugsort oder repräsentative Ferienimmobilie.Ähnliche Angebote
So funktioniert es
- Alle neuen Anzeigen matchen wir kostenlos mit Deinen Suchparametern.
- Passende Angebote senden wir Dir in einer E-Mail pro Tag.
- Du kannst auch verschiedene Suchen anlegen und Dich jederzeit abmelden. Mehr dazu




