Objektdaten
Objektbeschreibung
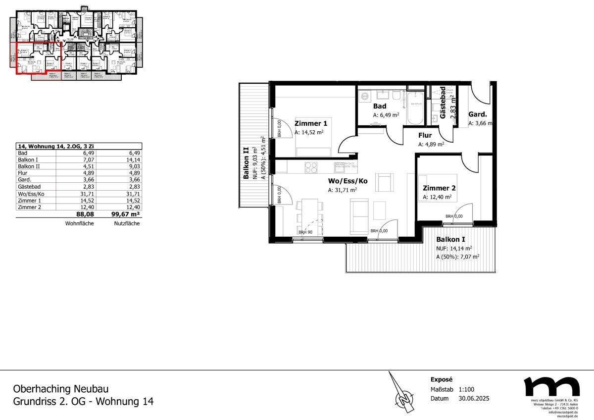
***Gerne stehen wir Ihnen für eine Beratung flexibel nach Terminvereinbarung zur Verfügung! Terminvereinbarung unter: 089 / 66 59 60***In der Ortsmitte von Oberhaching entsteht ein individueller Neubau umgeben von altem Baumbestand. Die großzügige 3-Zimmer Etagenwohnung ist ein wahres Juwel! Neben dem geräumigen Wohn-/ Essbereich mit integrierter Küche verfügt die ca. 88 m² große Wohnung über zwei weitere Zimmer, ein Badezimmer mit Badewanne und ein Gäste-WC mit Dusche. Das Highlight sind die zwei großen Balkone, die zum Verweilen einladen. Der gut durchdachte Grundriss macht das Einrichten der modernen und hellen Wohnung zum Vergnügen. Ein Kellerabteil gehört zur Wohnung und ein Tiefgaragen Stellplatz kann dazu erworben werden.Ähnliche Angebote
So funktioniert es
- Alle neuen Anzeigen matchen wir kostenlos mit Deinen Suchparametern.
- Passende Angebote senden wir Dir in einer E-Mail pro Tag.
- Du kannst auch verschiedene Suchen anlegen und Dich jederzeit abmelden. Mehr dazu




