Objektdaten
Objektbeschreibung
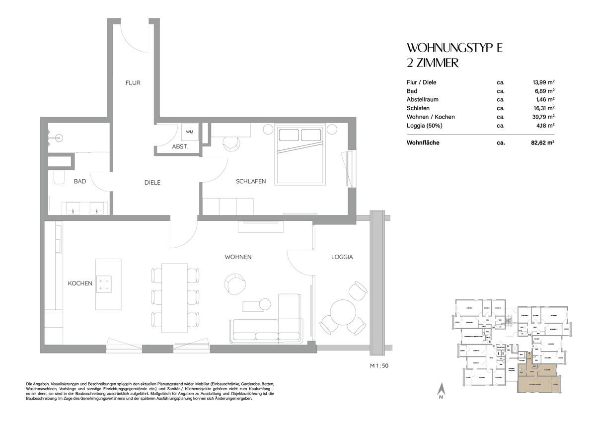
Großartiges Loft-Feeling mit Isarblick in trendiger Stadtlage!Jetzt MUSTERWOHNUNGEN besichtigen!Entdecken Sie dieses beeindruckende 2-Zimmer-Loft - ein wahres Juwel für Individualisten und Eigentümer mit dem Blick für das Besondere.Das weitläufige Raumkonzept dieser individuellen 2- Zimmer-Wohnung umfasst auf knapp 83m² einen großzügigen Wohn-Essbereich (ca. 42m²) mit offener Küchengestaltung, ein geräumiges Schlafzimmer, ein stylische Badezimmer sowie ein großes Entrée und eine praktische Abstellkammer. Eine XL-Südloggia mit fulminantem Blick ins Grüne und unverbaubarer Sicht auf die Isar machen diese Immobilie zu etwas ganz Besonderem! Im Untergeschoss steht ein Kellerabteil als gut nutzbarer Stauraum zur Verfügung. Der individuelle Raritäten-Grundriss wurde soeben hochwertig und stilvoll modernisiert, wobei neben einer Vielzahl von Veränderungen edles Eichendielenparkett neu verlegt und das Badezimmer stylisch gestaltet wurden. Ein neuer Lift sorgt für bequemen Zugang zur Wohnung. Die Beheizung erfolgt ressourcenschonend über Fernwärme. Optional besteht die Möglichkeit, einen komfortablen Stellplatz in der hauseigenen Tiefgarage zu erwerben. Neben der hochwertigen Ausstattung überzeugt dieses Objekt durch seine begehrte und unwiederbringliche Lage in der Münchner Isarvorstadt - direkt an der Isar - im lebendigen Dreimühlenviertel. Hier finden Sie eine Vielzahl an trendigen Cafés, Restaurants und Bars, die zum Verweilen einladen.Ähnliche Angebote
So funktioniert es
- Alle neuen Anzeigen matchen wir kostenlos mit Deinen Suchparametern.
- Passende Angebote senden wir Dir in einer E-Mail pro Tag.
- Du kannst auch verschiedene Suchen anlegen und Dich jederzeit abmelden. Mehr dazu




