Objektdaten
Objektbeschreibung
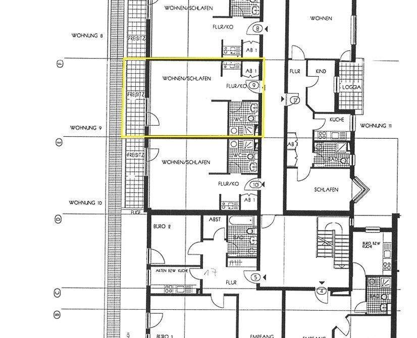
Das straßenbegleitende und moderne Wohn- und Geschäftshaus wurde 1996 in massiver Bauweise errichtet. Im Objekt befinden sich insgesamt 25 Wohnungen. Zu jeder Wohnung ist jeweils ein Keller bzw. Abteil im nicht ausgebauten Dachgeschoss zugeordnet. Die Hausgemeinschaft ist freundlich, Treppenhaus sowie die Außenanlagen präsentieren sich sauber und ordentlich. Das zum Verkauf stehende Appartement mit einer Wohnfläche von ca. 38 m² befindet sich im 1. Obergeschoss. Im Eingangsbereich befinden sich das Badezimmer mit Dusche, eine Abstellnische und eine Küchenzeile. Vom Flur gelangt man in das großzügige Wohn- und Schlafzimmer mit Ausgang zur Terrasse. Die aktuelle monatliche Nettokaltmiete beträgt € 270.Auf dem Grundstück stehen im Hofbereich PKW-Abstellplätze zur Anmietung zur Verfügung (nach Verfügbarkeit). Im öffentlichen Parkraum finden sich zudem kostenfreie Parkmöglichkeiten.Ähnliche Angebote
So funktioniert es
- Alle neuen Anzeigen matchen wir kostenlos mit Deinen Suchparametern.
- Passende Angebote senden wir Dir in einer E-Mail pro Tag.
- Du kannst auch verschiedene Suchen anlegen und Dich jederzeit abmelden. Mehr dazu




