Objektdaten
Objektbeschreibung
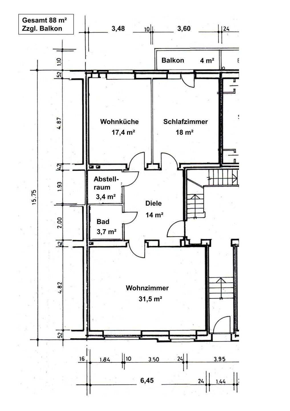
[URL="https://wunderflats.com/de/l/60107cb1eb541a0007fc77a5?utm_source=immowelt.de&utm_medium=partner&utm_campaign=demand&utm_content=DE"]Eine vollständige Beschreibung finden Sie bei wunderflats.com[/URL][URL="https://wunderflats.com/en/l/60107cb1eb541a0007fc77a5?utm_source=immowelt.de&utm_medium=referral&utm_campaign=standard"]Click here for a detailed description of the apartment in English.[/URL] Sie wollen Ihre Wohnsituation unkompliziert verändern? Dann bringen Sie Ihren Koffer mit und ziehen Sie in diese traumhafte Wohnung ein!Highlights:- Helle, frisch renovierte 3 Zimmer Wohnung im Dachgeschoss- Stillvoll und modern eingerichtet- Ersteinzug nach der Renovierung- Neuer, hochwertiger Parkettboden aus Eiche- Große Fensterfront mit Blick ins Grüne- Balkon mit Holzkohlengrill- Klinkerwand und Holzdachbalken- Ruhige Wohnlage- Vollausgestattete, moderne KücheHelle und frisch renovierte 3 Zimmer Wohnung (Wohnfläche ca. 90 qm) im Dachgeschoss (OHNE Aufzug) eines Mehrfamilienhauses. Die Wohnung liegt in einer ruhigen Seitenstraße und besitzt einen geräumigen Balkon (ca. 8qm). Die große Fensterfront im Wohnzimmer bietet einen herrlichen Blick ins Grüne und den Garten des Hauses. Die Holzbalken und massive Klinkerwand sorgen für einen einzigartigen Charme.Ausstattung:- Vollausgestattete Einbauküche- Großes Ledersofa mit Schlaffunktion im Wohnzimmer- Großes Doppelbett (180x200)- Gäste-/Kinderbett (90x200)- Sofa mit Schlaffunktion im Kinder-/Gästezimmer- 2 Badezimmer (Duschkabine und Badewanne)- Waschmaschine- Kaffeevollautomat- Spülmaschine- Kühlschrank inkl. Tiefkühltruhe- Flatscreen- Esstisch mit StühlenDie Wohnung liegt nah zum Elbroichpark, dem schönen dörflichen Stadtteil Himmelgeist mit Zugang zum Rhein und sorgt damit für einen hohen Freizeitwert.Die Lage der Wohnung eignet sich sehr gut für Ausflüge jeglicher Art wie z.B. das Benrather Schloss und dem Schlosspark. Aber auch die Düsseldorfer Innen- und Altstadt sind durch die gute Anbindung schnell erreicht. Es gibt eine nahgelegene Tankstelle, Restaurants und Cafés die 5 Gehminuten entfernt sind. Der nächste Supermarkt ist 5 min zu Fuß.Die Haltestelle Elbruchstraße (2 min. zu Fuß) bietet mit der TRAM/ U-Bahn eine gute Anbindung in die Düsseldorfer Innenstadt und zum Bahnhof Benrath und Hauptbahnhof Düsseldorf. Öffentliche Parkplätze befinden sich vor dem Haus (Anwohnerparken).Ähnliche Angebote
So funktioniert es
- Alle neuen Anzeigen matchen wir kostenlos mit Deinen Suchparametern.
- Passende Angebote senden wir Dir in einer E-Mail pro Tag.
- Du kannst auch verschiedene Suchen anlegen und Dich jederzeit abmelden. Mehr dazu





