Objektdaten
Objektbeschreibung
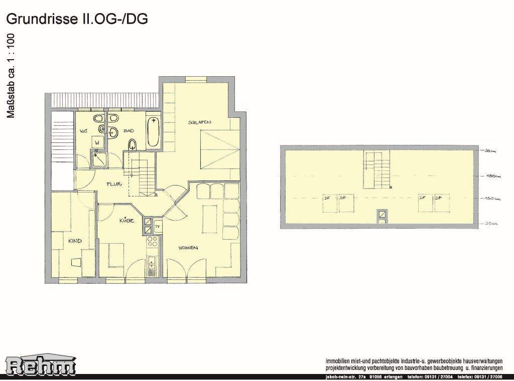
Reizv. 4-Zim.-Wohnung mit Freisitz, nahe am Wöhrder SeeLage -Gute zentrale Lage, unweit zum Wöhrder See und in die City.Weitere Infos zur Stadt Nürnberg finden Sie auch im Internet unter www.nuernberg.deKurzbeschreibung -Außergewöhnliche reizvolle 4-Zim. Wohnung über 2 Ebenen mit Studioraum und FreisitzAusstattung -Die Ausstattung darf insgesamt als sehr gut bezeichnet werden, nachstehend einige Ausstattungsdetails :- Einbauküche- Separater Kellerraum- Großzügiger Freisitz nach Süden- Studioraum mit offener Treppe nach oben- Thermo-Isolierglasfenster u. Türen außen- Pflegeleichte Böden, Keramik und Parkett- Innentüren u. Türstöcke Holz mit Füllungen- Badezimmer mit Waschbecken, Wanne, Dusche, WC- und zusätzliche separates WCÄhnliche Angebote
So funktioniert es
- Alle neuen Anzeigen matchen wir kostenlos mit Deinen Suchparametern.
- Passende Angebote senden wir Dir in einer E-Mail pro Tag.
- Du kannst auch verschiedene Suchen anlegen und Dich jederzeit abmelden. Mehr dazu





