Objektdaten
Objektbeschreibung
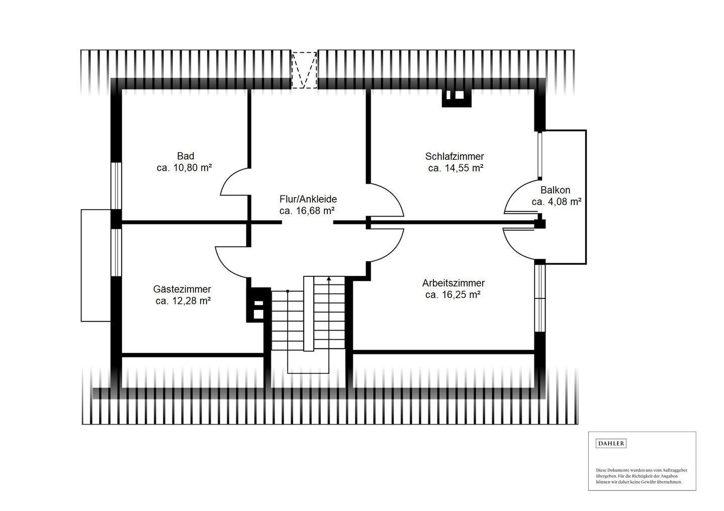
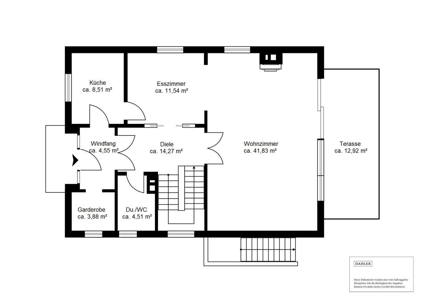
Das im Jahr 1980 in massiver Bauweise errichtete Einfamilienhaus steht auf einem ca. 781 m² großen Grundstück und überzeugt durch seine mittige Bebauung, die eine ausgewogene Aufteilung der Außenflächen ermöglicht. Der Garten teilt sich in zwei geschützte Bereiche: Ein nach Westen ausgerichteter, nicht einsehbarer Garten mit Terrasse lädt zu entspannten Stunden im Freien ein. Eine Markise sorgt für Schatten, während ein Gartenhaus zusätzlichen Stauraum bietet. Der eingewachsene Vorgarten mit Südost-Ausrichtung bietet einen ruhigen Platz für die Morgensonne und dient gleichzeitig als natürlicher Sichtschutz. Das Haus ist voll unterkellert und verfügt über viel Stauraum sowie einen separaten Außenzugang zum Keller. Beheizt wird die Immobilie über eine Viessmann-Gastherme aus dem Jahr 2007. Holzfenster mit Doppelverglasung sind vorhanden, einige wurden 2006 erneuert. Manuelle und teilweise elektrische Rollläden sorgen für zusätzlichen Komfort. Zwei Außenstellplätze auf dem Grundstück ermöglichen bequemes Parken direkt am Haus.Ähnliche Angebote
So funktioniert es
- Alle neuen Anzeigen matchen wir kostenlos mit Deinen Suchparametern.
- Passende Angebote senden wir Dir in einer E-Mail pro Tag.
- Du kannst auch verschiedene Suchen anlegen und Dich jederzeit abmelden. Mehr dazu




