Objektdaten
Objektbeschreibung
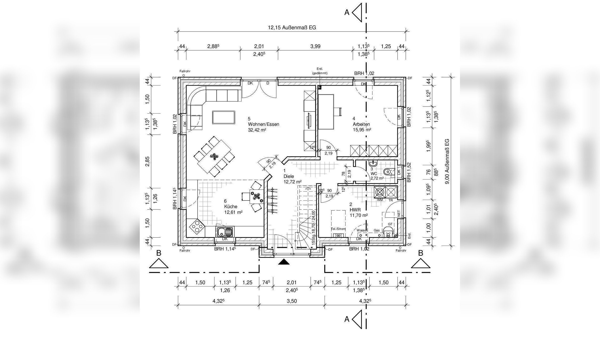
Geplanter Neubau auf großem Grundstück in Kronsforde mit unverbaubarem Blick ins Grüne! Grundstück vollständig erschlossen! Grundstückspreis inklusive. Bei diesem geplanten Neubau handelt es sich um ein Einfamilienhaus in Verblendvariante mit Friesengiebel. Zu diesem Einfamilienhaus gehört ein großzügiges Grundstück von ca. 1.200 m². Das Grundstück ist unbebaut und weist somit keinen Altbestand auf. Es liegt ruhig gelegen in Kronsforde. Dieses voll erschlossene Grundstück (Baulücke) ohne Altbestand ist bebaubar nach §34 Nachbarschaftsbebauung. Der Grundstückskaufpreis ist in unserem Angebot enthalten. Dieses Einfamilienhaus mit Friesengiebel hat eine Wohnfläche von ca. 158,29 m² nach Wohnflächenverordnung und ca.176,07,55 m² nach DIN. Der Käufer kann den Grundriss individuell ohne Aufpreis gestalten. Genauere Informationen erhalten Sie gerne nach Ihrer Anfrage, Nachricht oder Anruf. Wir freuen uns auf Sie!Ähnliche Angebote
So funktioniert es
- Alle neuen Anzeigen matchen wir kostenlos mit Deinen Suchparametern.
- Passende Angebote senden wir Dir in einer E-Mail pro Tag.
- Du kannst auch verschiedene Suchen anlegen und Dich jederzeit abmelden. Mehr dazu




