Kaufpreis 299.000 €
Zimmer 9
Größe 231 m²
68794 Oberhausen-Rheinhausen
Objektdaten
Veröffentlicht am: 15. März 2026
Energieausweis: Liegt bei der Besichtigung vor
Danke! Bitte bestätige Deine E-Mail-Adresse – wir haben Dir soeben eine Mail geschickt.
Es gab ein Problem beim Absenden. Bitte versuche es erneut.
Bitte bestätige Deine E-Mail-Adresse, um Updates zu erhalten.
Objektbeschreibung
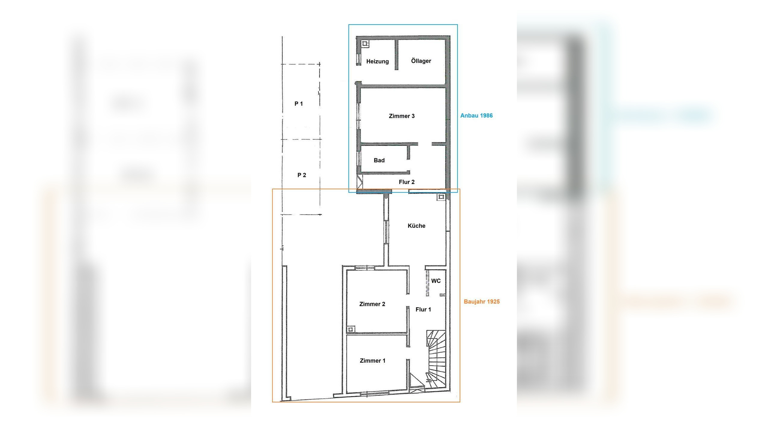
Das ca. 1925 erbaute Gebäude wurde 1965 im Obergeschoss erweitert und 1986 umfangreich an.- und umgebaut. Wodurch die heutige Wohnfläche von 231,42 m² verteilt auf 2 Etagen entstand. Das sanierungsbedürftige 2 Familienhaus verfügt derzeit über eine Wohnfläche von ca. 86,96 m², verteilt auf 4 ZKB, im Erdgeschoss. Weitere 144,46 m² stehen Ihnen, auf 5 ZKB mit Balkon, im Obergeschoss zur Verfügung. Sie betreten das Gebäude zum einen über den Haupteingang zur Straße hin gelegen. Zum anderen können Sie das Erdgeschoss über den Hofbereich begehen. Zu den beiden hintereinander gelegen Stellplätze gelangen Sie durch die überbaute Hofeinfahrt. Anhand des Bebauungsplanes stehen Ihnen bei diesem Sanierungsobjekt viele Möglichkeiten offen. Eine breitgefächerte Nutzung lässt Ihnen viel Raum für Ihre Bedürfnisse. Sie benötigen eine Gewerbe Immobilie oder doch lieber ein Wohnhaus? Vielleicht soll es auch eine Mischung aus beidem sein? Obwohl sich der Baukörper in einem Wohngebiet befindet sind allgemein auch zur Versorgung dienende Läden, Schank.- und Speisewirtschaften, nicht störende Handwerksbetriebe und Anlagen für kirchliche, kulturelle, soziale, gesundheitliche und sportliche Zwecke erlaubt. Ausnahmsweise zulässig sind Betriebe des Beherbergungsgewerbes, sonstige nicht störende Gewerbebetriebe und Anlagen für Verwaltungen. Überzeugen Sie sich selbst und gestalten Sie sich den Traum von Ihrer Immobilie.
So funktioniert es
- Alle neuen Anzeigen matchen wir kostenlos mit Deinen Suchparametern.
- Passende Angebote senden wir Dir in einer E-Mail pro Tag.
- Du kannst auch verschiedene Suchen anlegen und Dich jederzeit abmelden. Mehr dazu
Wir haben soeben eine E-Mail mit Deinem Suchauftrag an Dich geschickt. – Klicke in dieser Mail auf den Bestätigungslink und schon geht's los. Prüfe ggf. auch Deinen Spamordner.
Es gab ein Problem beim Absenden Deiner E-Mail-Adresse. Bitte versuche es erneut.
WARNUNG: Bitte bestätige Deine E-Mail-Adresse, um regelmäßige Updates zu erhalten.