Kaufpreis 3.380.000 €
89077 Ulm
Objektdaten
Veröffentlicht am: 16. März 2026
Baujahr: 1955
Energieausweis: Liegt bei der Besichtigung vor
Danke! Bitte bestätige Deine E-Mail-Adresse – wir haben Dir soeben eine Mail geschickt.
Es gab ein Problem beim Absenden. Bitte versuche es erneut.
Bitte bestätige Deine E-Mail-Adresse, um Updates zu erhalten.
Objektbeschreibung
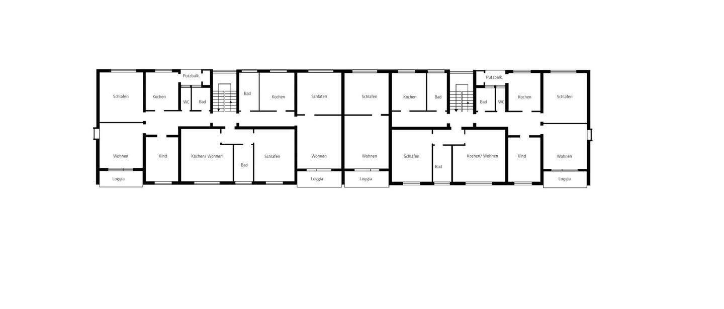
Nutzen Sie die Gelegenheit, in ein attraktives Mehrfamilienhaus in gefragter Lage von Ulm zu investieren. Die Immobilie eignet sich ideal für Kapitalanleger, die auf stabile Mieteinnahmen und langfristiges Entwicklungspotenzial setzen.Das im Jahr 1955 errichtete Mehrfamilienhaus umfasst insgesamt 19 Wohneinheiten sowie eine Gewerbeeinheit im Erdgeschoss und verfügt über eine Gesamtwohnfläche von ca. 1.335 m² sowie rund 135 m² Gewerbefläche. Die Wohnungsgrößen liegen zwischen ca. 35 m² und ca. 114 m² und sprechen damit unterschiedliche Mietergruppen an - von kleineren Einheiten bis hin zu großzügig geschnittenen Wohnungen.Ein Großteil der Wohnungen wurde bereits modernisiert: 16 der 19 Wohneinheiten wurden seit dem Jahr 2000 im Zuge von Mieterwechseln saniert, wodurch sich ein insgesamt gepflegter Zustand innerhalb der Immobilie ergibt. Die Liegenschaft wurde über die Jahre regelmäßig instand gehalten und verfügt über eine gewachsene Mieterstruktur, die eine solide Grundlage für langfristige Mieteinnahmen bildet.Die letzten Mieterhöhungen innerhalb des Hauses erfolgten im Januar 2024. Weitere Mietanpassungen auf Basis der ortsüblichen Vergleichsmiete sind daher voraussichtlich ab Januar 2027 wieder möglich.Zum Objekt gehören zudem drei Stellplätze auf einem separaten Flurstück, die zusätzlichen Nutzen für Mieter bieten und die Vermietbarkeit der Wohnungen unterstützen.Darüber hinaus bietet die Gesamtliegenschaft perspektivisch weiteres Entwicklungspotenzial. In Abstimmung mit der Stadt Ulm wurden Möglichkeiten zur Weiterentwicklung und Nachverdichtung geprüft. Im Rahmen einer Volumenstudie werden unter anderem eine mögliche Aufstockung des Dachgeschosses, der Einbau eines Aufzugs, der Bau einer Tiefgarage sowie ein zusätzlicher Neubau im Innenhof untersucht. Je nach zukünftiger Umsetzung könnten dadurch zusätzliche Geschossflächen entstehen und das langfristige Potenzial der Immobilie weiter steigern. Ein weiterer Vorteil der Gebäude liegt in der individuellen Beheizung der Wohnungen über Gasthermen. Dadurch erfolgt die Heizkostenabrechnung direkt über die jeweiligen Versorger, was den Verwaltungsaufwand für Eigentümer reduziert.Dieses Mehrfamilienhaus bietet somit eine interessante Kombination aus stabiler Vermietung, vielfältigen Wohnungsgrößen und langfristiger Entwicklungsperspektive in attraktiver Lage von Ulm.
So funktioniert es
- Alle neuen Anzeigen matchen wir kostenlos mit Deinen Suchparametern.
- Passende Angebote senden wir Dir in einer E-Mail pro Tag.
- Du kannst auch verschiedene Suchen anlegen und Dich jederzeit abmelden. Mehr dazu
Wir haben soeben eine E-Mail mit Deinem Suchauftrag an Dich geschickt. – Klicke in dieser Mail auf den Bestätigungslink und schon geht's los. Prüfe ggf. auch Deinen Spamordner.
Es gab ein Problem beim Absenden Deiner E-Mail-Adresse. Bitte versuche es erneut.
WARNUNG: Bitte bestätige Deine E-Mail-Adresse, um regelmäßige Updates zu erhalten.