Warmmiete 1.673 €
Zimmer 2
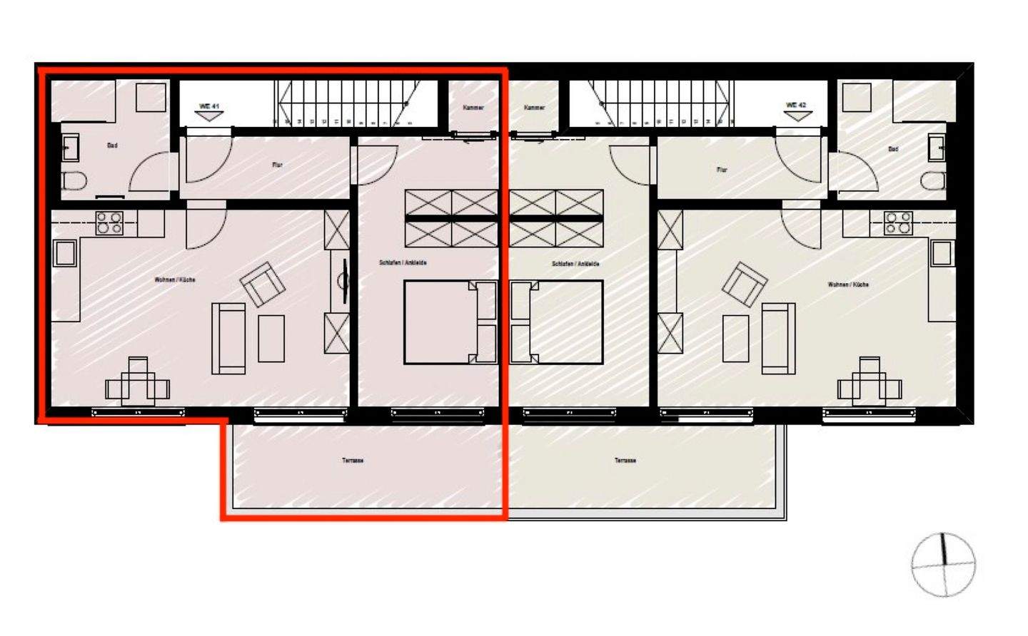
Größe 60 m²
04275 Leipzig
Objektdaten
Veröffentlicht am: 16. März 2026
Frei ab: 1. April 2026
Kaltmiete 1.340 €
Energieausweis: Liegt bei der Besichtigung vor
Danke! Bitte bestätige Deine E-Mail-Adresse – wir haben Dir soeben eine Mail geschickt.
Es gab ein Problem beim Absenden. Bitte versuche es erneut.
Bitte bestätige Deine E-Mail-Adresse, um Updates zu erhalten.
Objektbeschreibung
Einziehen, ankommen, wohlfühlen - in der begehrten Kurt-Eisner-Straße 59 in Leipzig-Südvorstadt erwartet Sie eine außergewöhnlich stilvolle, 2-Raum-Wohnung, die modernes Wohnen, Design und Komfort auf höchstem Niveau vereint. Der energieeffiziente Neubau im KfW-40-NN-Standard überzeugt durch klare Architektur, nachhaltige Bauweise und eine Innenausstattung, die bis ins Detail durchdacht ist.Bereits beim Betreten der Wohnung spürt man das harmonische Zusammenspiel von ästhetischer Gestaltung und funktionaler Eleganz. Auf rund 60,94 m² entfaltet sich ein offenes Raumkonzept mit lichtdurchfluteten Zimmern und hochwertigen Materialien, dass sofort ein Gefühl von Zuhause vermittelt.Der großzügige Wohn- und Essbereich bildet das Herzstück der Wohnung. Hier trifft zeitloses Design auf Behaglichkeit. Die integrierte Einbauküche mit modernen Elektrogeräten ist vollständig ausgestattet und fügt sich elegant in das Gesamtbild ein - ideal für alle, die modernes Design und Komfort lieben. Das Schlafzimmer mit Ankleide bietet Rückzug und Ruhe.Das stilvoll geflieste Badezimmer ist mit einer bodengleichen Dusche, edlen Armaturen von Grohe sowie Sanitärobjekten von Keramag ausgestattet und rundet das hochwertige Wohnkonzept ab.Hier verschmelzen Urbanität, Design und Lebensfreude - willkommen in Ihrem neuen Zuhause in der Südvorstadt.
So funktioniert es
- Alle neuen Anzeigen matchen wir kostenlos mit Deinen Suchparametern.
- Passende Angebote senden wir Dir in einer E-Mail pro Tag.
- Du kannst auch verschiedene Suchen anlegen und Dich jederzeit abmelden. Mehr dazu
Wir haben soeben eine E-Mail mit Deinem Suchauftrag an Dich geschickt. – Klicke in dieser Mail auf den Bestätigungslink und schon geht's los. Prüfe ggf. auch Deinen Spamordner.
Es gab ein Problem beim Absenden Deiner E-Mail-Adresse. Bitte versuche es erneut.
WARNUNG: Bitte bestätige Deine E-Mail-Adresse, um regelmäßige Updates zu erhalten.