Objektdaten
Objektbeschreibung
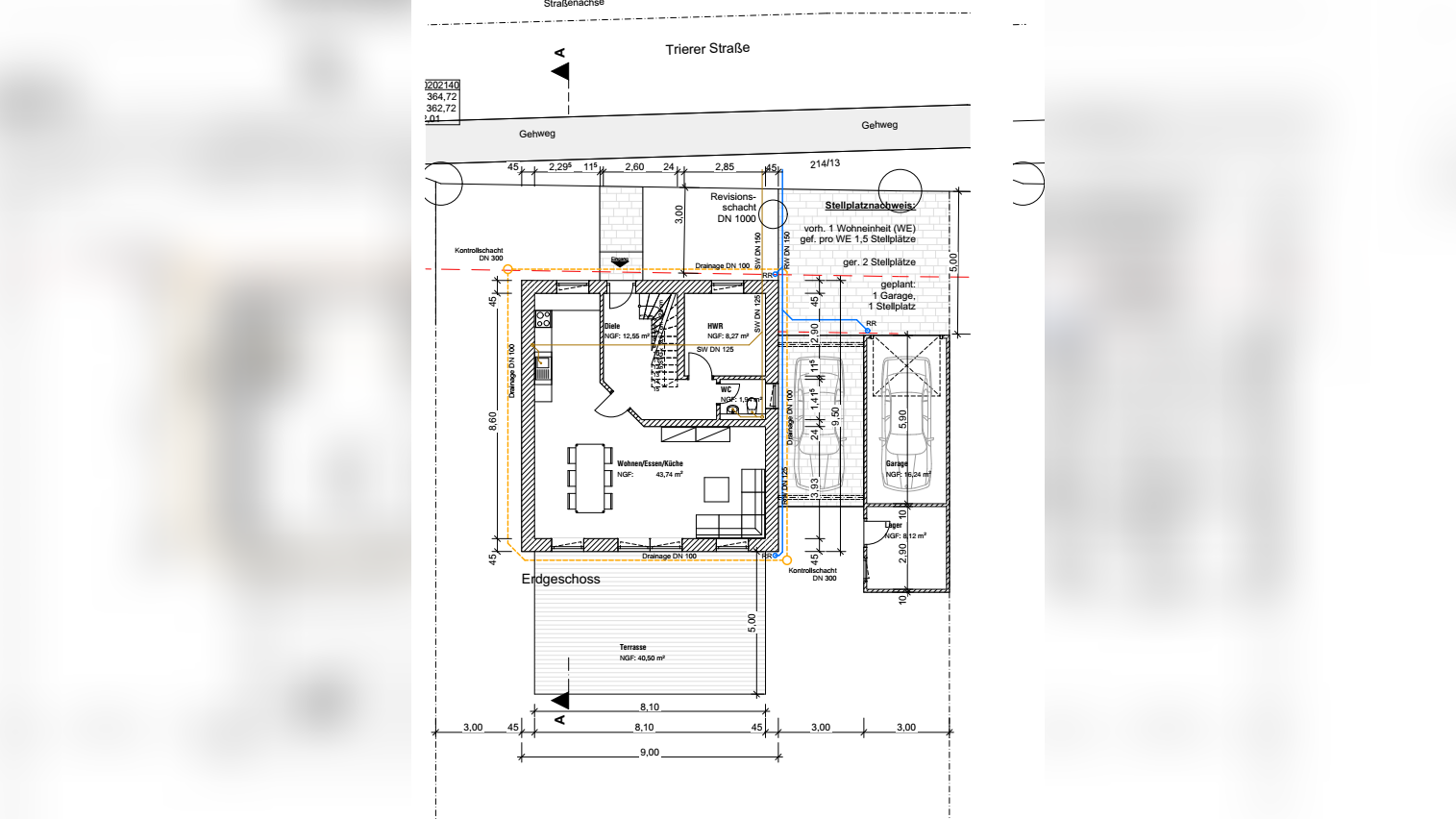
Schönes Baugrundstück mit Baugenehmigung für großzügiges freistehendes Wohnhaus in gefragter Lage von Zerf Schönes Grundstück mit genehmigter Planung für ein großzügiges freistehendes Wohnhaus in gefragter Lage von Zerf.Das Grundstück ist ortsüblich erschlossen. Die Hausanschlüsse müssen durch den Erwerber erstellt werden. Die geplante Bebauung sieht ein großzügiges Wohnhaus 2-geschossig mit ausgebautem Dachgeschoß in einer Größe von 9 x 9 m vor. Es ist keine Bauverpflichtungvorhanden. Das Grundstück wird mit Baugenehmigung für ein freistehendes Wohnhaus verkauft. Die Planung ist nur beispielhaft. Es ist auch eine andere Planung in Abstimmung mit der Bauverwaltung möglich. Es ist keine Bauverpflichtung vorhandenDie jetzige Planung für dieses Objekt sieht im Erdgeschoß den großzügigen Wohnraum/Essbereich mit offener Küche von insgesamt ca. 42 m² vor. Dieser verfügt über mehrere Ausgänge auf die schöne Terrasse und in den Garten. Auf Wunsch kann die Küche wahlweise offen oder geschlossen gestaltet werden. Das Erdgeschoss wird durch den Technik- bzw. Abstellraum sowie das Gäste-WC vervollständigt. Im Obergeschoss befinden sich zwei große helle Kinderzimmer von jeweils ca. 16 m², ein weiteres helles Kinderzimmer von ca. 13 m², das Kinderduschbad mit Fenster sowie der Hauswirtschaftsraum mit Anschluss für Waschmaschine und Trockner. Das Dachgeschoß ist ebenfalls zu Wohnzwecken ausgebaut. Hier befindet sich das große Elternschlafzimmer mit Ankleide von insgesamt ca. 21 m², ein schönes Kinderzimmer/Büro von ca. 10 m² sowie das großzügige Elternbad mit Fenster (ausgestattet mit Wanne und Dusche). Die Wohnfläche beträgt ca. 182 m².So funktioniert es
- Alle neuen Anzeigen matchen wir kostenlos mit Deinen Suchparametern.
- Passende Angebote senden wir Dir in einer E-Mail pro Tag.
- Du kannst auch verschiedene Suchen anlegen und Dich jederzeit abmelden. Mehr dazu




