Objektdaten
Objektbeschreibung
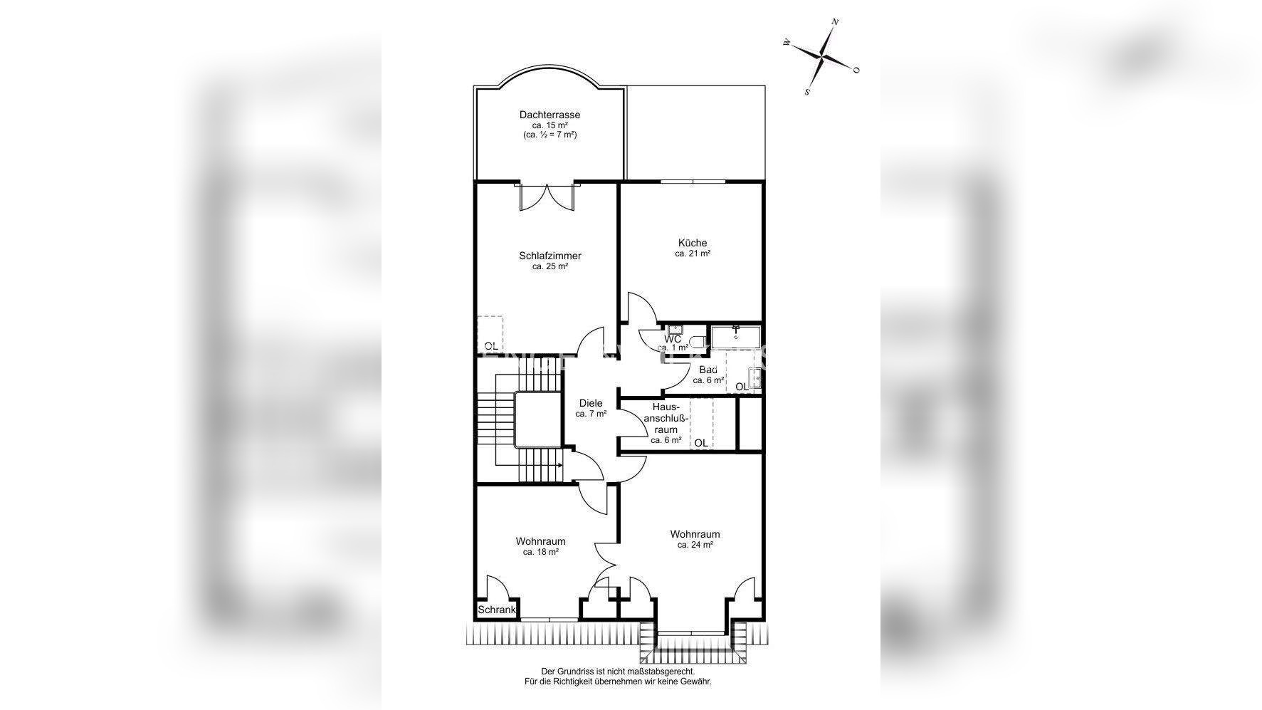
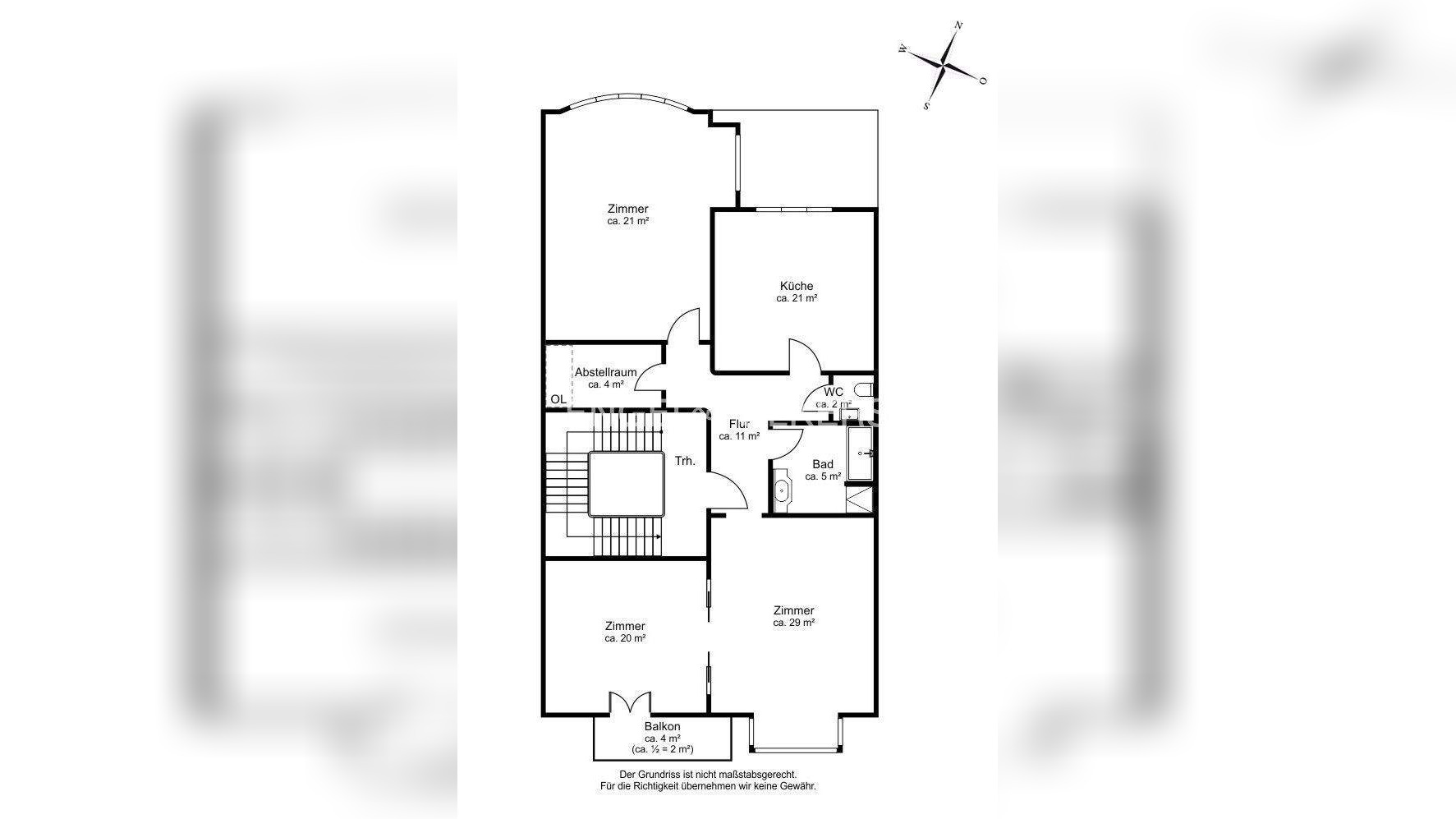
- Die weiße, elegante Stadtvilla verfügt zurzeit über 3 separate Wohnungen. Das Hochparterre und das 1. Obergeschoss werden frei geliefert, das 2. Obergeschoss ist zur Zeit vermietet- Die prachtvollen Räume im Erdgeschoss haben sehr schöne Stuckdecken- Elegante Rundbogenfenster und viele alte Stilelemente wurden sehr gut herausgearbeitet und geben der Wohnung ein besonderes Flair - Top ausgestattete Wohnküche mit Sitzecke und wunderschönem Blick in den Garten- Vom Wohnzimmer aus ist die herrliche Terrasse zu begehen, von hier hat man einen sehr schönen Gartenblick und viel Platz um mit der Familie zu speisen- Im Gartengeschoss befinden sich zwei helle Kinderzimmer mit bodentiefen Fenstern - Die Wohnung im ersten Obergeschoss ist hell und sehr gut geschnitten und wird frei geliefert- Zwei große ineinander gehende Wohnzimmer blicken zur Südseite- Der Balkon ist nach Süden ausgerichtet - Das große Schlafzimmer liegt ruhig zum Garten hin- Die Wohnküche ist praktisch und gut ausgestattet, hier findet ein großer Esstisch Platz - Das Badezimmer ist in schwarz/weiß gestaltet, ein Gäste-WC ist vorhanden - Der Garten ist zurzeit Kindergerecht angelegt- Das zweite Obergeschoss ist zurzeit vermietet, kann aber nach Absprache frei geliefert werden Haben wir Ihr Interesse geweckt?Wir freuen uns auf Ihre Kontaktaufnahme.Ihr Engel & Völkers Team Hamburg Alster StadtvillenTel.: 040 - 468 63 120E-Mail: [email protected]: Bucher & PrexelÄhnliche Angebote
So funktioniert es
- Alle neuen Anzeigen matchen wir kostenlos mit Deinen Suchparametern.
- Passende Angebote senden wir Dir in einer E-Mail pro Tag.
- Du kannst auch verschiedene Suchen anlegen und Dich jederzeit abmelden. Mehr dazu




