Objektdaten
Objektbeschreibung
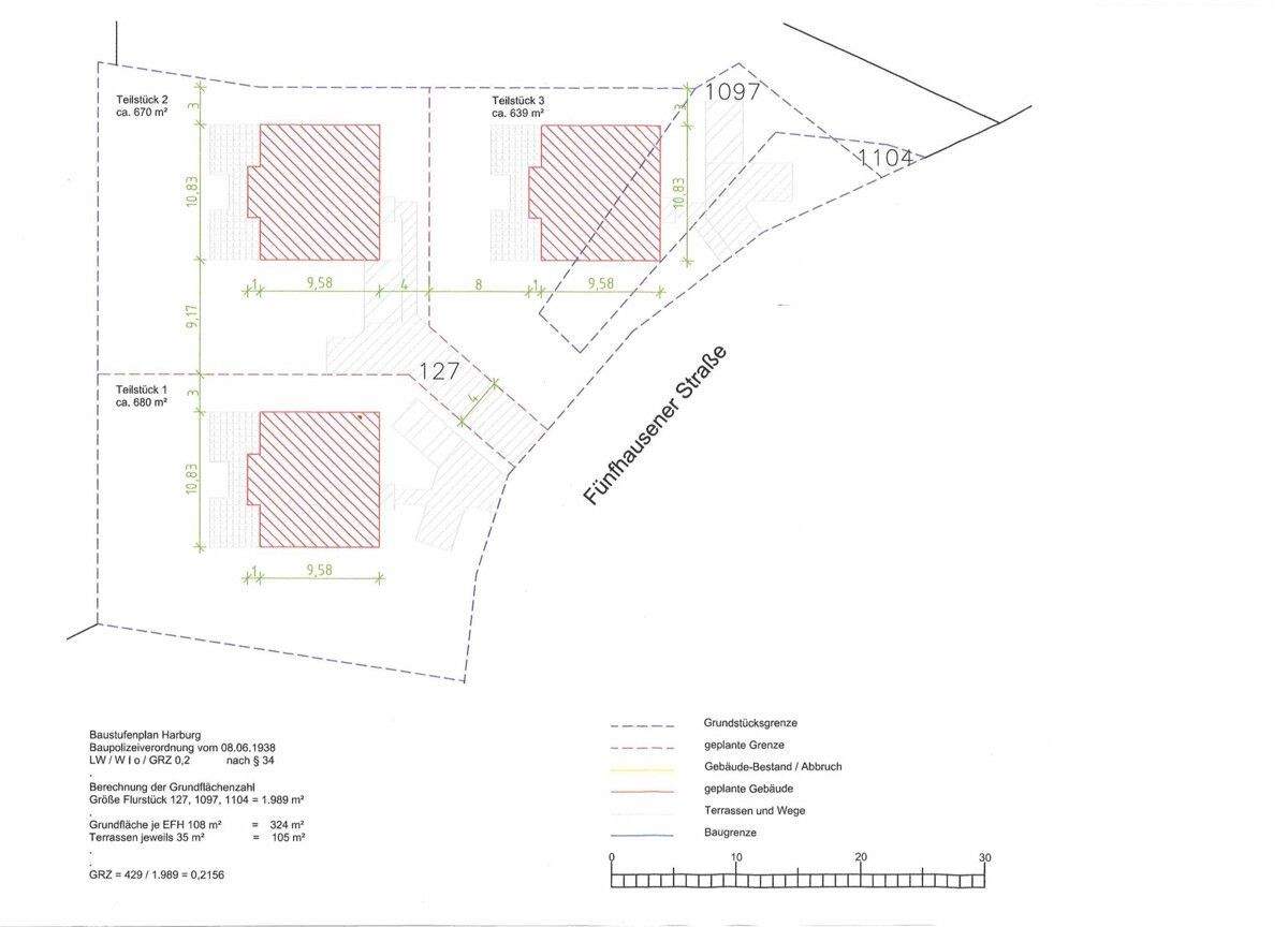
Das ca. 1.989 m² große Baugrundstück liegt an der öffentlichen Straße "Fünfhausener Straße", anliegend an dem Naturschutzgebiet "Neuländer Moorwiesen" und bietet vielseitige Bebauungsmöglichkeiten an. Das Umfeld ist geprägt von frei stehenden Einfamilienhäusern und Doppelhäusern auf gepflegten Grundstücken. Altbeständen befinden sich nicht auf dem Grundstück.Für den Gültigkeitsbereich dieses Grundstücks gibt es keinen gültigen Bebauungsplan, es gilt der "Baustufenplan Harburg Änderung vom 13.09.1960".Es liegt ein positiver Bauvorbescheid vor für den Bau von drei Einzelhäusern auf dem Grundstück. Ein Gespräch zur Information über Ihre persönliche Bebauungswünsche bei dem Bauamt in Hamburg-Harburg ist ratsam.Ähnliche Angebote
So funktioniert es
- Alle neuen Anzeigen matchen wir kostenlos mit Deinen Suchparametern.
- Passende Angebote senden wir Dir in einer E-Mail pro Tag.
- Du kannst auch verschiedene Suchen anlegen und Dich jederzeit abmelden. Mehr dazu



