Absolut schöne und gut geschnittene 4-Zimmer-Wohnung mit ca. 105 m² Wohnfläche in Magdeburg-Stadtfeld-Ost. Im Altbau mit hofseitiger Gartenmitbenutzung und zentraler Lage zu Einkaufsmöglichkeiten.
Objektdaten
Objektbeschreibung
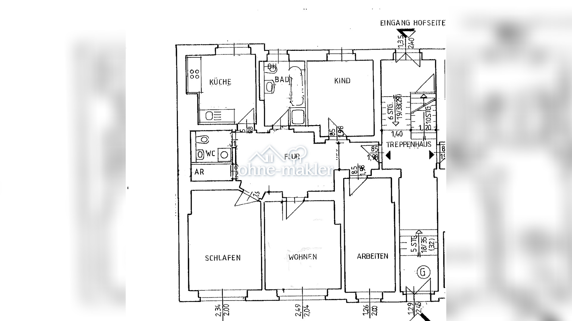
In angenehmer Wohngegend mit Gründerzeitflair (Stadtfeld-Ost) In einer sehr guten Wohnlage befindet sich diese absolut schöne, gut geschnittene Vier-Zimmer-Wohnung mit ca. 105 m² Wohnfläche in einem Altbau in der Lessingstr. 57. Es handelt sich um eine Wohnung im Hochparterre mit der Möglichkeit der hofseitigen Gartenmitbenutzung. Die Räumlichkeiten erreichen Sie über einen großzügigen Treppenaufgang. Die Räume sind sowohl straßenseitig als auch hofseitig gelegen. Alle Wohnräume sind mit einem schönen Laminat in Holzoptik ausgelegt und mit hochwertigen weißen Bodenleisten verziert. Alle Zimmer haben eine großzügige Größe und sind sehr praktisch geschnitten. Das kleine Schlafzimmer ist auf die Hofseite ausgerichtet und bietet einen herrlichen Blick ins Grüne. Auf der gegenüber liegenden Seite befinden sich drei weitere Räume, die straßenseitig ebenso einen komfortablen Zuschnitt aufweisen. Ebenso ist in dieser Wohnung ein tagesbelichtetes Bad mit Badewanne und Dusche. Ein Gäste- WC mit einem Waschmaschinenstellplatz ist ebenso vorhanden. Eine Küche mit einem neuen Fliesenspiegel und neu gefliestem Fussboden runden das Angebot ab. Keller, Vollbad, Gäste-WC, Laminat, Fliesen Bemerkungen: Bad mit Fenster Wanne und Dusche, Gäste-WC, GartenmitbenutzungEnergieträger: Gas
Interessenten sollten an einer langfristigen Anmietung mindestens 2 Jahre interessiert sein und ihr Einkommen aus eigenem Engagement regenerieren.
Gute Internetmöglichkeiten sind im Hause gegeben.
Die Gesamtmiete einschließlich der Vorauszahlungen für Betriebskosten beträgt 1.100,00€.
Es handelt sich bei der angegebenen Wohnung um eine reine Mietwohnung. Aus diesem Grunde bitte ich alle Makler und Kaufinteressenten sich unter der Rubrik "Eigentumswohnungen" um- und von etwaigen Kaufanfragen an dieser Stelle abzusehen!
Makleranfragen nicht erwünscht. Nach § 7 UWG sind unaufgeforderte Kontaktaufnahmen durch Makler ohne ausdrückliche Einwilligung des Empfängers verboten!
ohne-makler (OM) ist weder Anbieter noch Vermittler der Immobilie. OM betreibt eine Plattform für Immobilieneigentümer, die unter anderem die gleichzeitige Veröffentlichung einzelner Inserate auf mehreren Immobilienportalen ermöglicht. Die Inhalte dieser Inserate werden ausschließlich von Dritten verantwortet. Für die Richtigkeit, Vollständigkeit oder Rechtmäßigkeit der Angaben übernimmt OM keine Haftung. Hinweise auf mögliche Rechtsverstöße können jederzeit gemeldet werden und werden nach Prüfung umgehend bearbeitet.
Ähnliche Angebote
So funktioniert es
- Alle neuen Anzeigen matchen wir kostenlos mit Deinen Suchparametern.
- Passende Angebote senden wir Dir in einer E-Mail pro Tag.
- Du kannst auch verschiedene Suchen anlegen und Dich jederzeit abmelden. Mehr dazu





