Kaufpreis 503.559 €
Zimmer 3
Größe 100 m²
83561 Ramerberg
Objektdaten
Veröffentlicht am: 18. März 2026
Energieausweis: Liegt bei der Besichtigung vor
Danke! Bitte bestätige Deine E-Mail-Adresse – wir haben Dir soeben eine Mail geschickt.
Es gab ein Problem beim Absenden. Bitte versuche es erneut.
Bitte bestätige Deine E-Mail-Adresse, um Updates zu erhalten.
Objektbeschreibung
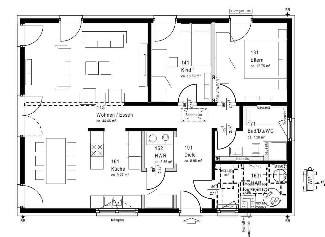
Willkommen in Ramerberg - einer Gemeinde, die für ihre naturnahe Umgebung und ein lebendiges Miteinander bekannt ist. Auf einem sonnigen Grundstück von ca. 421 m² entsteht hier Ihr neues Zuhause: ein projektiertes Einfamilienhaus, das modernes Wohnen, durchdachte Architektur und energieeffizientes Bauen vereint.Der kompakte Bungalow-Stil bietet auf rund 103 m² Wohnfläche alles, was Familien oder Paare zum Wohlfühlen benötigen. Der großzügige Wohn- und Essbereich mit direktem Zugang in den Garten, ein Elternschlafzimmer, ein Kinderzimmer sowie Küche, Bad und zwei praktische Nebenräume schaffen ein kompaktes, funktionales Raumkonzept auf einer Ebene. Dank der Holzständerbauweise durch einen renommierten Fertighaushersteller profitieren Sie von Qualität "Made in Germany" und hoher Flexibilität bei der Gestaltung.Das Haus wird im Standard bereits als KfW-Effizienzhaus 55 ausgeführt und ist mit einer Luft-Wasser-Wärmepumpe, Fußbodenheizung im Erdgeschoss, dreifach verglasten Fenstern und einer kontrollierten Be- und Entlüftung mit Wärmerückgewinnung ausgestattet. So wohnen Sie nicht nur zukunftssicher, sondern auch besonders energieeffizient und kostensparend.Entgegen der Bilder ist das Grundstück schon freigelegt worden.Neben den Wohnflächen besteht auch die Möglichkeit ein komplettes Kellergeschoss mit ca. 111 m² Nutzfläche zusätzlich zu erwerben.Die Baukosten für das Haus belaufen sich auf rund 304.000 €, hinzu kommen 239.000 € für das Grundstück. Die 3,57 % Maklerprovision gelten nur auf den Grundstücksanteil. Weitere Ausgaben wie Baunebenkosten, Erdarbeiten oder Hausanschlüsse sind separat zu berücksichtigen.***Sie kaufen den Grundstücksanteil für 239.000 Euro. Außerdem wird ein Werkvertrag mit unserem renommierten Partner "Massa" geschlossen, der das Haus zum Festpreis in der Ausbaustufe "fast schlüsselfertig plus" anbietet. Lediglich Parkett, Innentüren und Malerarbeiten sind nicht im Angebot enthalten und können hinzugebucht werden. Übliche Baunebenkosten wie Anschlusskosten und Beiträge für die Gemeinde kommen zum angezeigten Preis noch hinzu. Lassen Sie sich gerne von uns beraten. Es ist außerdem möglich, das Grundstück ohne die Bauleistung von Massa zu erwerben, eine andere Ausbaustufe zu wählen oder alternativ einen anderen Hausbauer zu beauftragen.
So funktioniert es
- Alle neuen Anzeigen matchen wir kostenlos mit Deinen Suchparametern.
- Passende Angebote senden wir Dir in einer E-Mail pro Tag.
- Du kannst auch verschiedene Suchen anlegen und Dich jederzeit abmelden. Mehr dazu
Wir haben soeben eine E-Mail mit Deinem Suchauftrag an Dich geschickt. – Klicke in dieser Mail auf den Bestätigungslink und schon geht's los. Prüfe ggf. auch Deinen Spamordner.
Es gab ein Problem beim Absenden Deiner E-Mail-Adresse. Bitte versuche es erneut.
WARNUNG: Bitte bestätige Deine E-Mail-Adresse, um regelmäßige Updates zu erhalten.