Kaufpreis 410.000 €
Zimmer 2
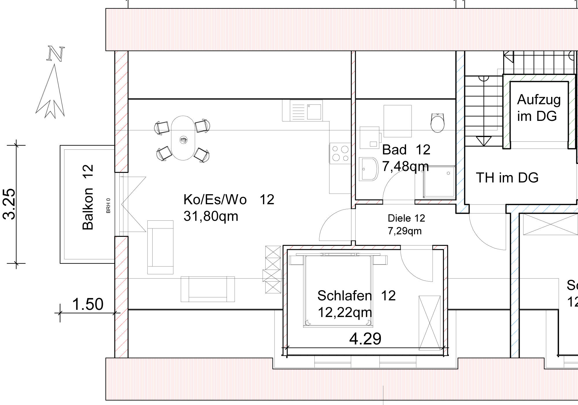
Größe 61 m²
85051 Ingolstadt
Objektdaten
Veröffentlicht am: 18. März 2026
Energieausweis: Liegt bei der Besichtigung vor
Danke! Bitte bestätige Deine E-Mail-Adresse – wir haben Dir soeben eine Mail geschickt.
Es gab ein Problem beim Absenden. Bitte versuche es erneut.
Bitte bestätige Deine E-Mail-Adresse, um Updates zu erhalten.
Objektbeschreibung
"Ein Zuhause ist nicht nur ein Ort, es ist ein Gefühl." - Cecelia Ahren. Willkommen in Cintura Verde - Ihrem neuen Zuhause am Stadtrand von Ingolstadt. In der ruhigen Ortsrandlage des Tiefwiesenwegs entstehen ab 2025 drei hochwertige Mehrfamilienhäuser mit insgesamt 19 exklusiven Wohneinheiten. Dieses einzigartige Projekt verbindet zeitgemäße Architektur, nachhaltiges Bauen und höchsten Wohnkomfort in einer idyllischen Umgebung. Egal ob Familie, Paar oder Bestager - hier finden Sie einen Ort, an dem Sie sich wohlfühlen und Ihr Leben genießen können.Nachhaltiges Wohnen mit Charme und Komfort. Cintura Verde steht für modernes Wohnen, bei dem Nachhaltigkeit, Ästhetik und Komfort perfekt miteinander harmonieren. Die drei Mehrfamilienhäuser mit insgesamt 19 Wohneinheiten werden in hochwertiger Massivbauweise. Wasserundurchlässige Stahlbetonkeller und massive Innenwände garantieren Stabilität und Langlebigkeit, während eine zusätzliche Dachgeschossdämmung aus Holzweichfaserplatten besten Hitzeschutz in den Sommermonaten bietet. Die Wohnungen überzeugen mit durchdachten Grundrissen und lichtdurchfluteten Räumen, die durch bodentiefe Kunststofffenster mit 3-Scheiben-Isolierverglasung besonders freundlich und einladend wirken. Balkone und Terrassen schaffen Rückzugsorte, die zu entspannten Stunden in der Sonne einladen - ein Ort, um bei einer Tasse Kaffee den Tag zu begrüßen oder den Abend entspannt ausklingen zu lassen.Für ein angenehmes Wohnklima sorgt ein dezentrales Lüftungssystem der Firma Inventer, während die Fußbodenheizung mit Einzelraumthermostaten wohlige Wärme bietet. Im Sommer nutzen Sie die komfortable Kühlfunktion, für entspanntes Wohnen und Schlafen - auch an den heißesten Tagen des Jahres. Elektrische Rollläden und barrierefreie Zugänge gewährleisten zusätzlichen Komfort, und der moderne Personenaufzug macht jede Wohnung bequem erreichbar.Die Innenausstattung der Wohnungen kann individuell nach Ihren Wünschen gestaltet werden, von edlen Böden bis hin zu eleganten Fliesen. Die harmonische Fassadengestaltung mit dualem Farbkonzept und stilvollen Gesimsen unterstreicht die exklusive Optik der Gebäude. Egal, ob Sie ein gemütliches Zuhause für Ihre Familie suchen, als Paar das Leben genießen möchten oder einen Rückzugsort im Grünen schätzen - bei Cintura Verde finden Sie ein Zuhause, das genau zu Ihren Bedürfnissen passt.Ein Tiefgaragenstellplatz kostet 25.000 Euro. Ein Außenstellplatz kann - je nach Verfügbarkeit - optional für 10.000 Euro zusätzlich erworben werden.
So funktioniert es
- Alle neuen Anzeigen matchen wir kostenlos mit Deinen Suchparametern.
- Passende Angebote senden wir Dir in einer E-Mail pro Tag.
- Du kannst auch verschiedene Suchen anlegen und Dich jederzeit abmelden. Mehr dazu
Wir haben soeben eine E-Mail mit Deinem Suchauftrag an Dich geschickt. – Klicke in dieser Mail auf den Bestätigungslink und schon geht's los. Prüfe ggf. auch Deinen Spamordner.
Es gab ein Problem beim Absenden Deiner E-Mail-Adresse. Bitte versuche es erneut.
WARNUNG: Bitte bestätige Deine E-Mail-Adresse, um regelmäßige Updates zu erhalten.