Objektdaten
Objektbeschreibung
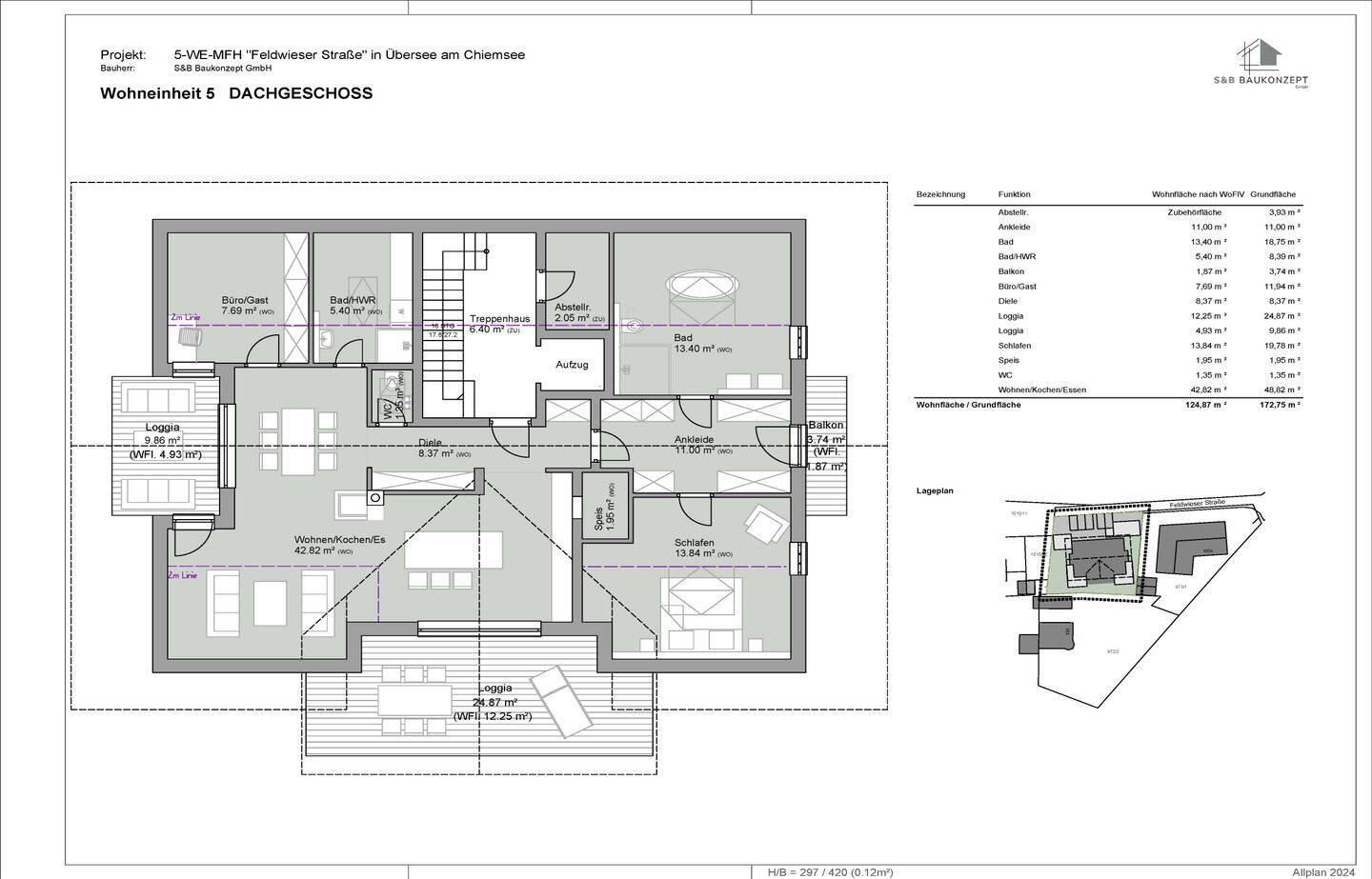
Modernster Komfort verbindet sich mit hoher Lebensqualität!Das moderne Mehrfamilienhaus mit nur fünf Wohneinheiten besticht durch seine klare Architektursprache und ein nachhaltiges Energiekonzept als Effizienzhaus 55.Hochwertige Materialien, großzügige Grundrisse und lichtdurchflutete Räume sorgen für ein zeitgemäßes Wohngefühl – komfortabel, stilvoll und zukunftsorientiert.Repräsentative Wohnräume sowie traumhafte Schlaf – und Rückzugsbereiche, präsentieren sich sehr großzügig und die gehobene Ausstattung entspricht dem heutigen, gehobenen Wohlgefühl.Ähnliche Angebote
So funktioniert es
- Alle neuen Anzeigen matchen wir kostenlos mit Deinen Suchparametern.
- Passende Angebote senden wir Dir in einer E-Mail pro Tag.
- Du kannst auch verschiedene Suchen anlegen und Dich jederzeit abmelden. Mehr dazu




