Raumwunder mit 5-Zi., schönem Gartenanteil und Gartenhaus im EG, 133,83 qm | Haus B

Kaufpreis 649.027 €
Zimmer 5
Größe 133 m²
79365 Rheinhausen

Objektdaten

Veröffentlicht am: 18. März 2026
Baujahr: 2025
Energieausweis: Liegt bei der Besichtigung vor
Neu

Über ähnliche Angebote direkt informiert werden

  • Objektbeschreibung

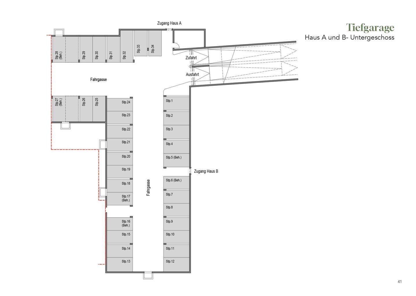
    WOHNPARK RHEINHAUSENUrbanes Leben im ländlichen Raum! Auf dem ca. 6.732qm großen Grundstück der ehemaligen Grundschule Rheinhausen entsteht in 2 Bauabschnitten der Wohnpark Rheinhausen. Insgesamt erstellen wir fünf repräsentative Gebäude um einen zentralen Spiel-Treff-Platz mit insgesamt 77 Wohnungen und einer gemeinschaftlichen Tiefgarage. Die dreigeschossigen Gebäude mit zusätzlichem Attikageschoss sind optimal in das Ortsbild eingebunden und geben ausreichend Freiraum. Insbesondere die modernen Penthouse-Wohnungen geben einen freien Blick Richtung Schwarzwald im Osten und Vogesen im Westen. Die Grundschule, der Kindergarten, der REWE Supermarkt oder das Gesundheitszentrum sind fußläufig erreichbar. ERSTER BAUABSCHNITT (HAUS A+B)Im ersten Bauabschnitt entstehen die Häuser A und B mit insgesamt 34 attraktiven 2 bis 5 Zimmer Eigentumswohnungen und Wohnflächen von 44 bis 176 Quadratmetern. Jeweils 3 Vollgeschosse mit einem zusätzlichen Attikageschoss bieten durchdachte Raumaufteilungen, große Balkone bzw. Terrassen und praktische Stellflächen. Die gemeinsame Tiefgarageneinfahrt von Seiten der Schulstraße bietet durch separate Zu- und Ausfahrt einen sicheren und bequemen Zugang. Die Müllräume und Fahrradabstellplätze sind ebenso bestens integriert. Die Zuwegung zu den einzelnen Gebäuden vermittelt eine einladende Atmosphäre. Im Innenbereich des Wohnparks Rheinhausen entsteht ein nachbarschaftlicher Treffpunkt mit durchdacht angelegten Wegeführungen und Grünbereichen, Sitzgelegenheiten und einem Spielplatz. Die Privatgärten der Erdgeschosswohnungen fügen sich wohltuend ein und bieten ausreichend Privatsphäre.Zu allen weiteren Details stehen wir Ihnen jederzeit persönlich zur Verfügung und freuen uns über Ihre Kontaktaufnahme.Ein Modell der Wohnanlage im Maßstab 1:100 steht Ihnen ebenfalls zur Ansicht bereit.

    So funktioniert es

    • Alle neuen Anzeigen matchen wir kostenlos mit Deinen Suchparametern.
    • Passende Angebote senden wir Dir in einer E-Mail pro Tag.
    • Du kannst auch verschiedene Suchen anlegen und Dich jederzeit abmelden. Mehr dazu
    Nach oben scrollen