Objektdaten
Objektbeschreibung
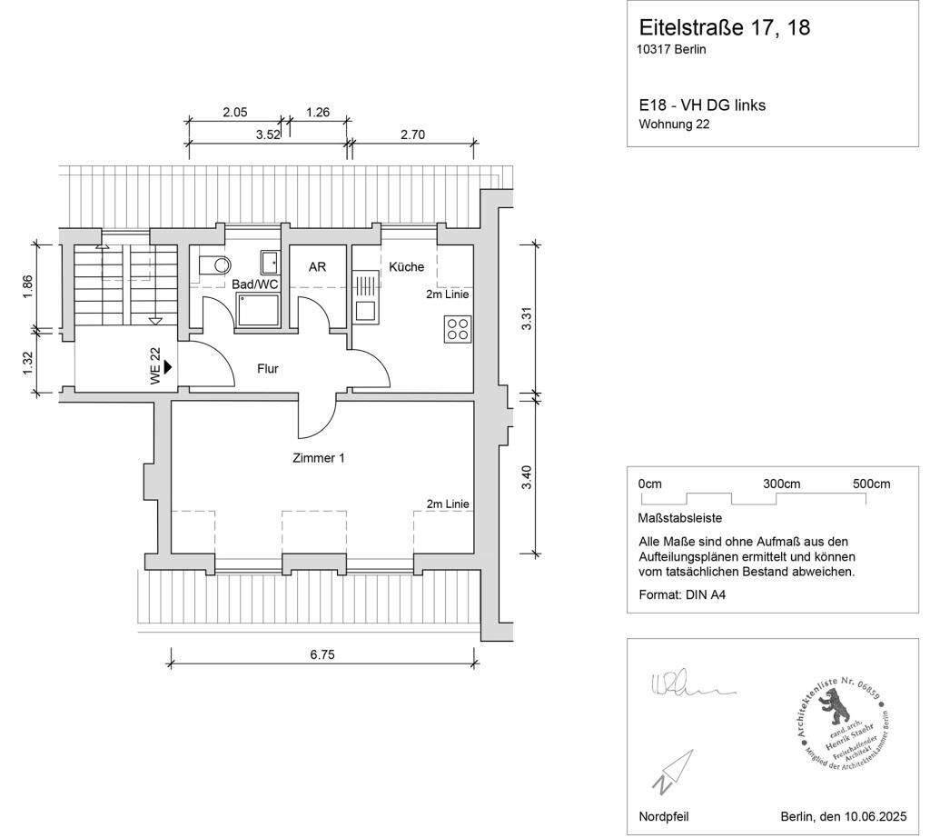
In dieser romantischen Single-Wohnung lebt man fast wie im siebten Himmel über Berlin. Die ca. 46 m² große Einzimmerwohnung verbindet Komfort mit dem besonderen Charme einer Dachgeschosswohnung. Moderate Dachschrägen, verkleidete Dachbalken und große, helle Gaubenfenster schaffen eine wohnliche Atmosphäre und gliedern den Raum auf natürliche Weise in verschiedene Bereiche. Schlafen, Arbeiten oder Hobbys - alles findet hier seinen Platz und lässt sich optisch angenehm voneinander trennen. Die Fenster des Wohnraums sind nach Süd-Ost zum ruhigen Innenhof ausgerichtet und bieten einen schönen Blick in die Baumkronen. Die separate Tageslichtküche bietet genügend Raum für einen gemütlichen Esstisch - perfekt, um den Tag mit Blick auf Berlins Sonnenuntergänge ausklingen zu lassen. Selbst im Badezimmer lässt sich beim Duschen der Blick nach Nordwest über die Dächer genießen. Durch Fenster in mehrere Himmelsrichtungen lässt sich die Wohnung gut querlüften - so bleibt auch an warmen Sommertagen ein angenehmes Raumklima erhalten. Eine zusätzliche Kammer mit ca. 2,5 m² bietet praktischen Stauraum.Ähnliche Angebote
So funktioniert es
- Alle neuen Anzeigen matchen wir kostenlos mit Deinen Suchparametern.
- Passende Angebote senden wir Dir in einer E-Mail pro Tag.
- Du kannst auch verschiedene Suchen anlegen und Dich jederzeit abmelden. Mehr dazu




