Objektdaten
Objektbeschreibung
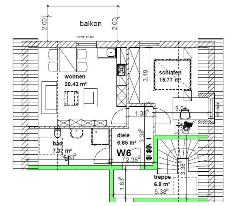
Gehobene Ausstattung, modern und innovativ präsentiert sich dieses Objekt, das in einem Mehrfamilienanwesen mit 6 Mietparteien im Erstbezug zur Verfügung steht.Als besonderes Highlight mit ökologischem Charakter gibt es teilweise eine strukturierte Sichtbetonwand. Die Wohnung verfügt über- eine kleine Diele mit Zugang zu den Räumlichkeiten- einen Kochen-Essen-Wohnbereich mit Zugang zum Balkon- ein angenehm großes Schlafzimmer und- ein Bad mit gehobener Ausstattung und Waschmaschinenanschluss Als Wärmeerzeuger für die Fußbodenheizung dient eine Luftwärmepumpe, die Erwärmung des Warmwassers erfolgt dezentral über einen Elektroboiler. Die Stromversorgung für die Mieter erfolgt im Mieterstrommodell. Zur Wohneinheit gehört ein Kellerabteil und ein Außenstellplatz.Ähnliche Angebote
So funktioniert es
- Alle neuen Anzeigen matchen wir kostenlos mit Deinen Suchparametern.
- Passende Angebote senden wir Dir in einer E-Mail pro Tag.
- Du kannst auch verschiedene Suchen anlegen und Dich jederzeit abmelden. Mehr dazu





