Objektdaten
Objektbeschreibung
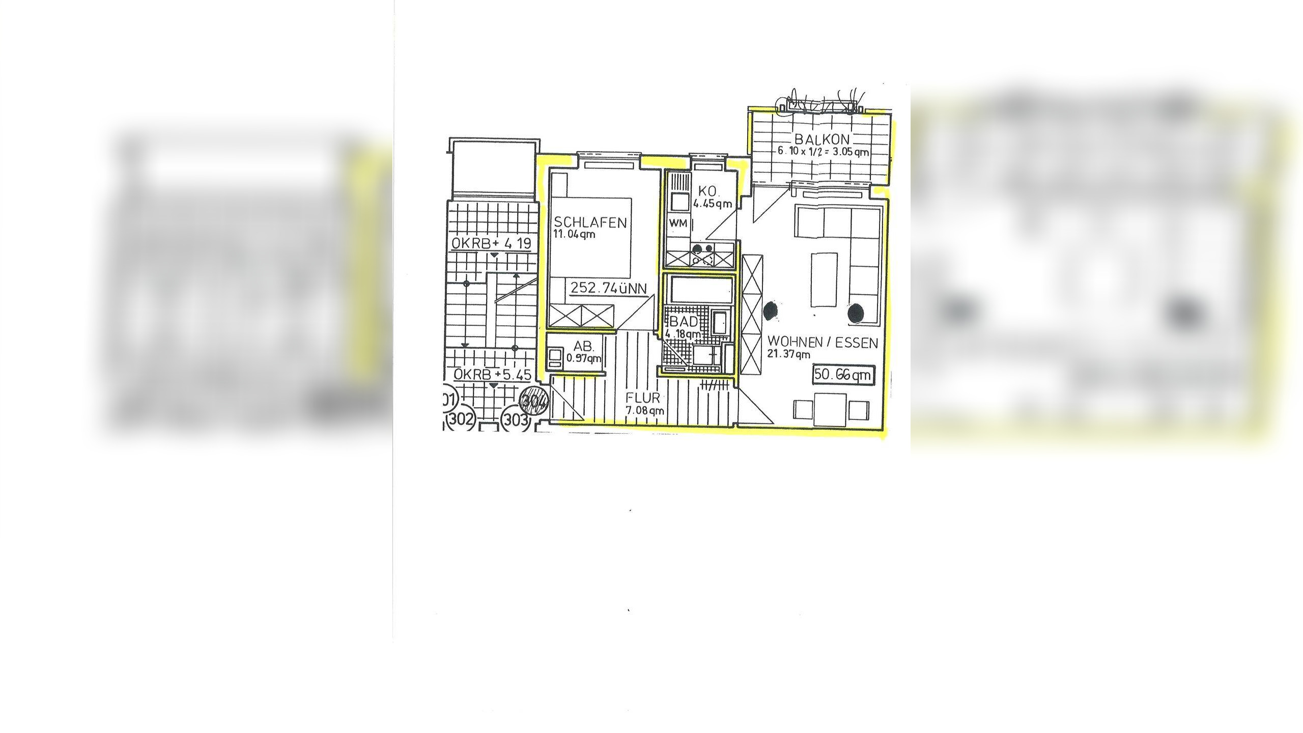
Die Raumaufteilung wollen Sie bitte beigefügten Plan (pdf-Datei) entnehmen.Ähnliche Angebote
So funktioniert es
- Alle neuen Anzeigen matchen wir kostenlos mit Deinen Suchparametern.
- Passende Angebote senden wir Dir in einer E-Mail pro Tag.
- Du kannst auch verschiedene Suchen anlegen und Dich jederzeit abmelden. Mehr dazu




