Objektdaten
Objektbeschreibung
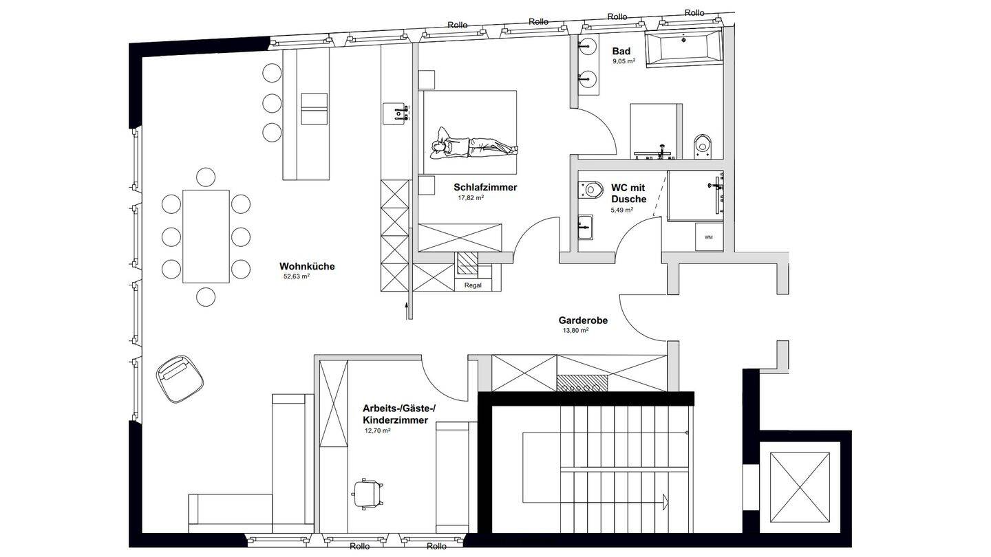
Willkommen in der charmanten Nachbarschaft Lorenz, nur einen Steinwurf von der Nürnberger Altstadt entfernt. In diesem Gebäude steht eine großzügige und lichtdurchflutete 3-Zimmer-Wohnung im zweiten Obergeschoss zur Verfügung. Die Wohnfläche liegt bei ca. 111 m² und bietet eine durchdachte Raumaufteilung. Die Wohnung verfügt über ein Badezimmer sowie ein separates Gäste-WC mit Dusche und ist mit einer voll ausgestatteten Küche versehen – ideal für Paare oder kleine Familien. Die Lage könnte kaum besser sein: Die U-Bahn-Station Lorenzkirche sowie mehrere Bushaltestellen sind in wenigen Metern erreichbar. Für den täglichen Einkauf liegt ein REWE City nur etwa 140 Meter entfernt. Ein besonderes Highlight ist der Blick auf die Kaiserburg Nürnberg, der der Wohnung ein einzigartiges historisches Ambiente verleiht. In Kombination mit der unmittelbaren Nähe zur Pegnitz entsteht ein besonderes Wohngefühl, das urbanes Leben mit hoher Lebensqualität verbindet. Vereinbaren Sie gerne einen Besichtigungstermin und überzeugen Sie sich selbst von dieser attraktiven Wohnung im Herzen Nürnbergs.Ähnliche Angebote
So funktioniert es
- Alle neuen Anzeigen matchen wir kostenlos mit Deinen Suchparametern.
- Passende Angebote senden wir Dir in einer E-Mail pro Tag.
- Du kannst auch verschiedene Suchen anlegen und Dich jederzeit abmelden. Mehr dazu





