Neubau-Doppelhaushälfte mit Grundstück

Kaufpreis 595.000 €
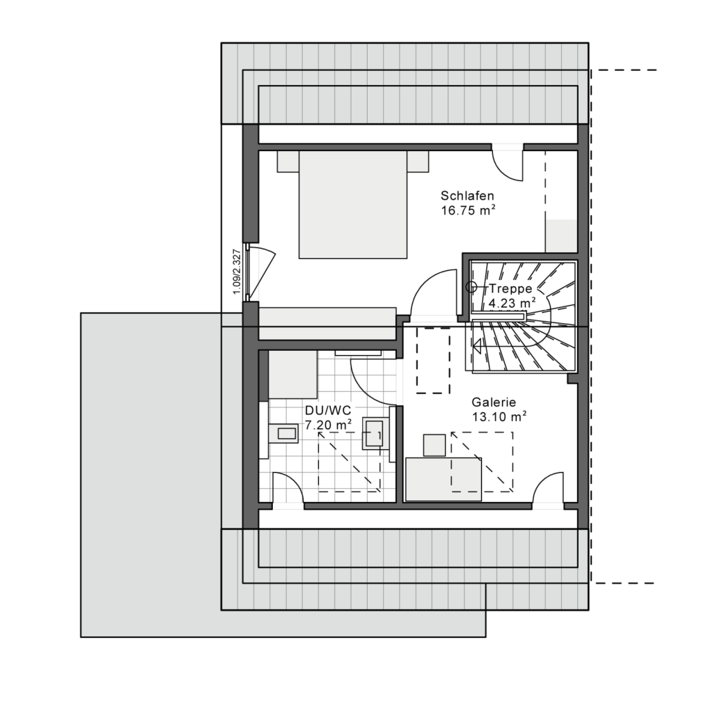
Zimmer 4
Größe 144 m²
84453 Mühldorf a. Inn

Objektdaten

Veröffentlicht am: 21. März 2026
Energieausweis: Liegt bei der Besichtigung vor
Neu

Über ähnliche Angebote direkt informiert werden

  • Objektbeschreibung

    WELCOME HOME. WELCOME TO YOUR FUTURE.Dein Zuhause ist mehr als vier Wände - es ist dein Rückzugsort, dein Investment, dein neuer Lebensabschnitt. White&Black macht Wohneigentum bezahlbar, modern und flexibel. Jetzt ist der richtige Moment, um anzukommen.

    So funktioniert es

    • Alle neuen Anzeigen matchen wir kostenlos mit Deinen Suchparametern.
    • Passende Angebote senden wir Dir in einer E-Mail pro Tag.
    • Du kannst auch verschiedene Suchen anlegen und Dich jederzeit abmelden. Mehr dazu
    Nach oben scrollen