Objektdaten
Objektbeschreibung
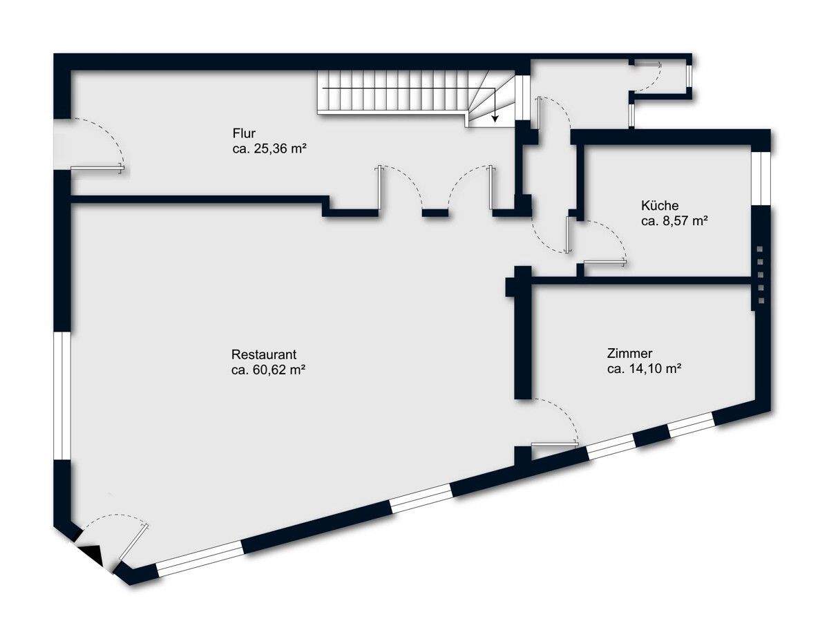
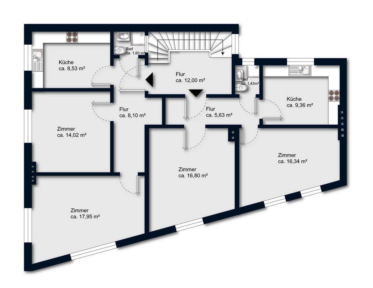
Bei der angebotenen Immobilie handelt es sich um ein gepflegtes Wohn- und Geschäftshaus mit gemischter Nutzung, bestehend aus einer Gewerbeeinheit im Erdgeschoss sowie vier darüberliegenden Wohneinheiten.Im Erdgeschoss befindet sich seit 2004 ein etabliertes Restaurant. Die Immobilie ist voll unterkellert, wobei der Keller nicht nur dem Restaurant zugeordnet ist, sondern auch Stauraum für die Mieter der darüberliegenden Wohnungen bietet.In den darüberliegenden Etagen befinden sich insgesamt vier abgeschlossene Wohneinheiten. Sowohl im 1. Obergeschoss als auch im Dachgeschoss sind jeweils zwei Wohnungen angeordnet. Alle Wohneinheiten verfügen über einen funktionalen Grundriss mit jeweils zwei Zimmern, Küche sowie Duschbad. Ein zentraler Flur innerhalb jeder Wohnung verbindet die einzelnen Räume miteinander und sorgt für eine klare, gut vermietbare Raumstruktur.Der Zugang zu den Wohneinheiten erfolgt separat und unabhängig vom Eingang des Restaurants, wodurch eine klare Trennung zwischen Wohn- und Gewerbenutzung gewährleistet ist.Die Wohnungen sind aktuell ungekündigt vermietet und bilden gemeinsam mit der Gewerbeeinheit eine solide Grundlage für stabile und planbare Mieteinnahmen, wodurch sich das Objekt insbesondere für Kapitalanleger eignet.Ähnliche Angebote
So funktioniert es
- Alle neuen Anzeigen matchen wir kostenlos mit Deinen Suchparametern.
- Passende Angebote senden wir Dir in einer E-Mail pro Tag.
- Du kannst auch verschiedene Suchen anlegen und Dich jederzeit abmelden. Mehr dazu




