Kaufpreis 424.990 €
Zimmer 2
Größe 78 m²
82194 Gröbenzell
Objektdaten
Veröffentlicht am: 21. März 2026
Energieausweis: Liegt bei der Besichtigung vor
Danke! Bitte bestätige Deine E-Mail-Adresse – wir haben Dir soeben eine Mail geschickt.
Es gab ein Problem beim Absenden. Bitte versuche es erneut.
Bitte bestätige Deine E-Mail-Adresse, um Updates zu erhalten.
Objektbeschreibung
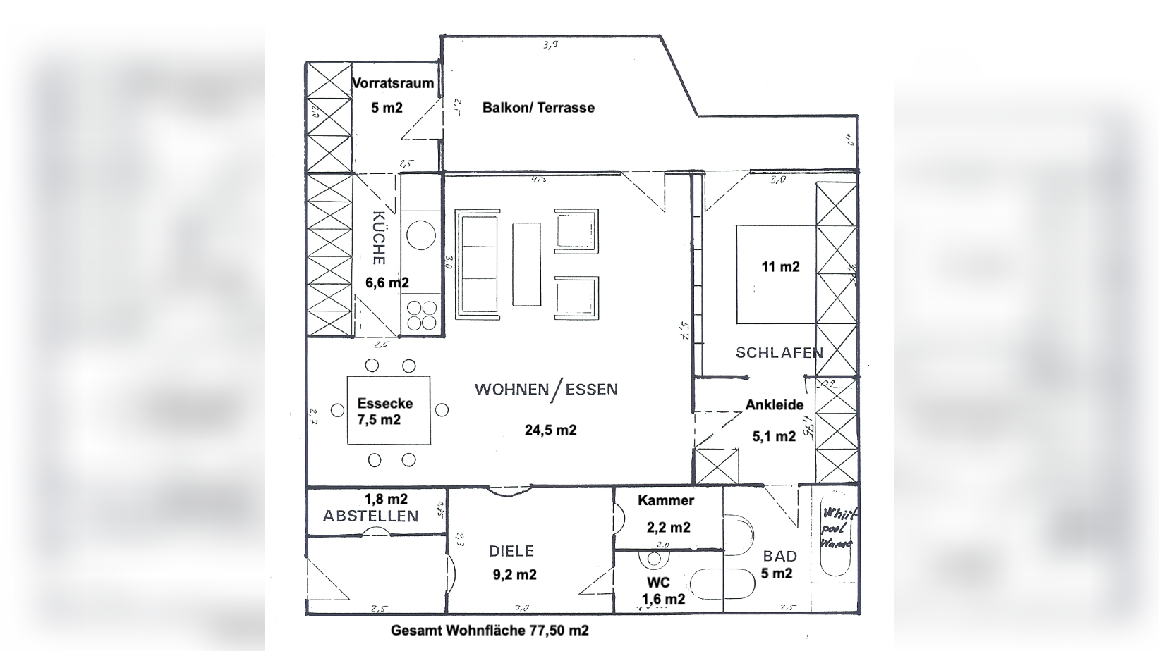
Diese gut geschnittene 2,5-Zimmer-Wohnung im 3. Obergeschoss eines gepflegten Mehrfamilienhauses überzeugt durch ein durchdachtes Raumkonzept, eine angenehme Wohnatmosphäre sowie einen großzügigen Außenbereich. Ein Personenaufzug sorgt für einen komfortablen Zugang zur Wohnung und unterstreicht die Alltagstauglichkeit dieser Immobilie.Beim Betreten der Wohnung empfängt Sie eine zentral gelegene Diele, die als verbindendes Element alle Räume erschließt. Eine integrierte Nische bietet ideale Voraussetzungen für einen stilvollen Home-Office-Bereich und schafft zusätzlichen Mehrwert im Alltag. Von hier aus erreichen Sie das Gäste-WC sowie sämtliche Wohnbereiche auf kurzen, gut strukturierten Wegen.Der großzügige Wohn- und Essbereich bildet das Herzstück der Wohnung und überzeugt durch seine offene Gestaltung sowie eine helle, freundliche Atmosphäre. Große Fensterflächen lassen viel Tageslicht herein und schaffen ein angenehmes Wohngefühl. Von hier aus gelangen Sie direkt auf den weitläufigen Balkon, der als besonderes Highlight hervorsticht und ausreichend Platz für entspannte Stunden im Freien bietet.Die separate Küche ist funktional geschnitten und wird durch einen angrenzenden Wintergarten ergänzt - eine seltene und zugleich praktische Erweiterung, die zusätzlichen Stauraum schafft und vielfältige Nutzungsmöglichkeiten eröffnet.Das Schlafzimmer überzeugt durch seine angenehme Größe und wird durch eine separate Ankleide mit großzügigen Einbauschränken ergänzt. Dieses durchdachte Detail sorgt für Ordnung und ein hohes Maß an Komfort.Das Badezimmer ist mit einer Badewanne inklusive Whirlpoolfunktion ausgestattet und bietet damit eine ideale Kombination aus Funktionalität und Entspannung.Eine praktische Abstellkammer innerhalb der Wohnung sowie ein eigenes Kellerabteil runden das Raumangebot ab und bieten zusätzliche Stauflächen.Diese Immobilie eignet sich ideal für Kapitalanleger, Führungskräfte oder Expats, die eine wertstabile Immobilie in gut angebundener Lage suchen.Nutzen Sie jetzt diese Gelegenheit und vereinbaren Sie Ihren persönlichen Besichtigungstermin - wir freuen uns auf Ihre Anfrage.
So funktioniert es
- Alle neuen Anzeigen matchen wir kostenlos mit Deinen Suchparametern.
- Passende Angebote senden wir Dir in einer E-Mail pro Tag.
- Du kannst auch verschiedene Suchen anlegen und Dich jederzeit abmelden. Mehr dazu
Wir haben soeben eine E-Mail mit Deinem Suchauftrag an Dich geschickt. – Klicke in dieser Mail auf den Bestätigungslink und schon geht's los. Prüfe ggf. auch Deinen Spamordner.
Es gab ein Problem beim Absenden Deiner E-Mail-Adresse. Bitte versuche es erneut.
WARNUNG: Bitte bestätige Deine E-Mail-Adresse, um regelmäßige Updates zu erhalten.