Objektdaten
Objektbeschreibung
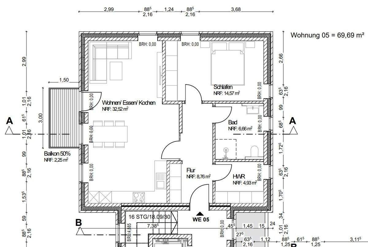
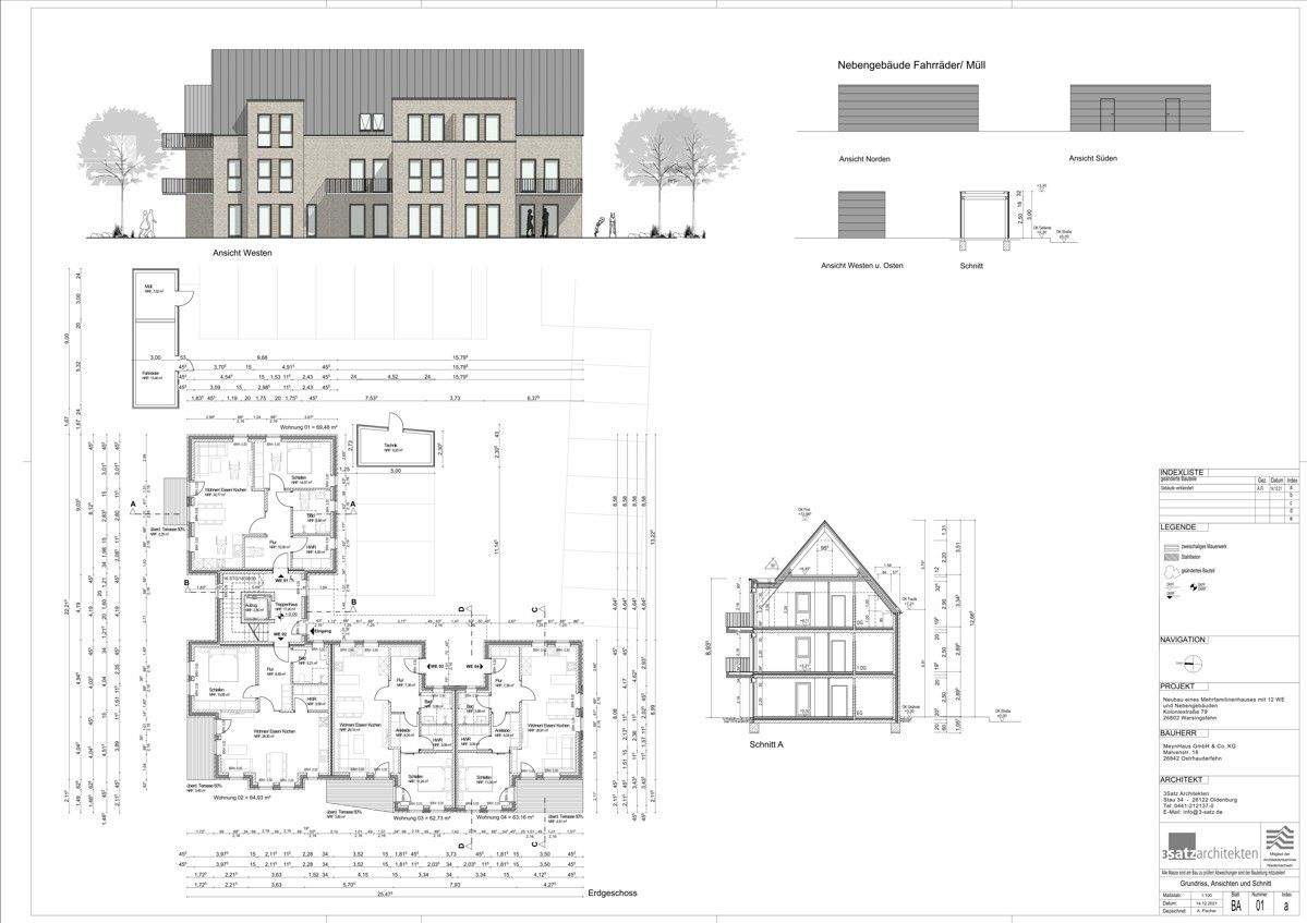
In zentraler und dennoch ruhiger Lage von Warsingsfehn entsteht ein modernes Mehrfamilienhaus mit insgesamt 12 Wohn- und Gewerbeeinheiten. Das Objekt kombiniert hochwertige Bauweise mit durchdachten Grundrissen und bietet zeitgemäßen Wohn- und Geschäftskomfort für verschiedene Zielgruppen - von Singles über Paare bis hin zu kleinen Familien und Büros.Gebäude und Ausstattung:Wohnfläche gesamt: ca. 740,73 m²Wohnungs- und Bürogrößen: von ca. 49 m² bis ca. 69 m²Energieeffiziente Bauweise mit moderner WärmedämmungHelle und offene Wohnbereiche mit großzügigen FensterfrontenFußbodenheizung in allen WohnungenBalkone oder Terrassen mit optimaler AusrichtungModerne Badezimmer mit bodengleichen DuschenFahrstuhl für barrierearmen Zugang zu allen EtagenAußenanlagen & Parkmöglichkeiten:Begrünte Außenflächen mit AufenthaltsbereichenPkw-Stellplätze für die BewohnerÜberdachte FahrradstellplätzeMüll- und Technikräume separat untergebrachtBesonderheiten:Das Gebäude wird nach modernen energetischen Standards errichtet. Die Architektur überzeugt durch eine zeitlose Gestaltung mit hochwertigen Materialien. Großzügige Fensterflächen sorgen für eine lichtdurchflutete Wohnatmosphäre.So funktioniert es
- Alle neuen Anzeigen matchen wir kostenlos mit Deinen Suchparametern.
- Passende Angebote senden wir Dir in einer E-Mail pro Tag.
- Du kannst auch verschiedene Suchen anlegen und Dich jederzeit abmelden. Mehr dazu




