Objektdaten
Objektbeschreibung
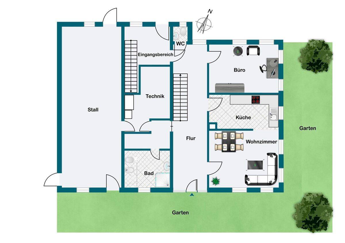
Das Anwesen wurde vor etwa 150 Jahren erbaut und befindet sich im Außenbereich. Das dazugehörige Grundstück umfasst rund 0,5 Hektar.Das Haupthaus wurde in den Jahren 2014/2015 umfassend renoviert und ist derzeit an ein sehr sympathisches älteres Ehepaar vermietet. Das Mietverhältnis besteht bis Ende 2026. Der Auszug der Mieter ist verbindlich notariell vereinbart.Mit der Genehmigungsbehörde ist abgeklärt, dass bis zu fünf Wohnungen in der Kubatur des gesamten Anwesens eingebaut werden können. Die ehemalige Scheune kann zwei oder drei neue Wohnungen aufnehmen. Eine kleinere Wohnung kann auch im Dachgeschoss über dem renovierten Wohnteil entstehen.Das Bauernhaus hat eine Süd-Ost-Ausrichtung.Aus Rücksicht auf die Mieter veröffentlichen wir keine Fotos der Innenräume. Im Exposé geben wir Ihnen jedoch gerne weitere Infos.Ähnliche Angebote
So funktioniert es
- Alle neuen Anzeigen matchen wir kostenlos mit Deinen Suchparametern.
- Passende Angebote senden wir Dir in einer E-Mail pro Tag.
- Du kannst auch verschiedene Suchen anlegen und Dich jederzeit abmelden. Mehr dazu




