Kaufpreis 424.000 €
Zimmer 4
Größe 125 m²
25524 Itzehoe
Objektdaten
Veröffentlicht am: 25. März 2026
Energieausweis: Liegt bei der Besichtigung vor
Danke! Bitte bestätige Deine E-Mail-Adresse – wir haben Dir soeben eine Mail geschickt.
Es gab ein Problem beim Absenden. Bitte versuche es erneut.
Bitte bestätige Deine E-Mail-Adresse, um Updates zu erhalten.
Objektbeschreibung
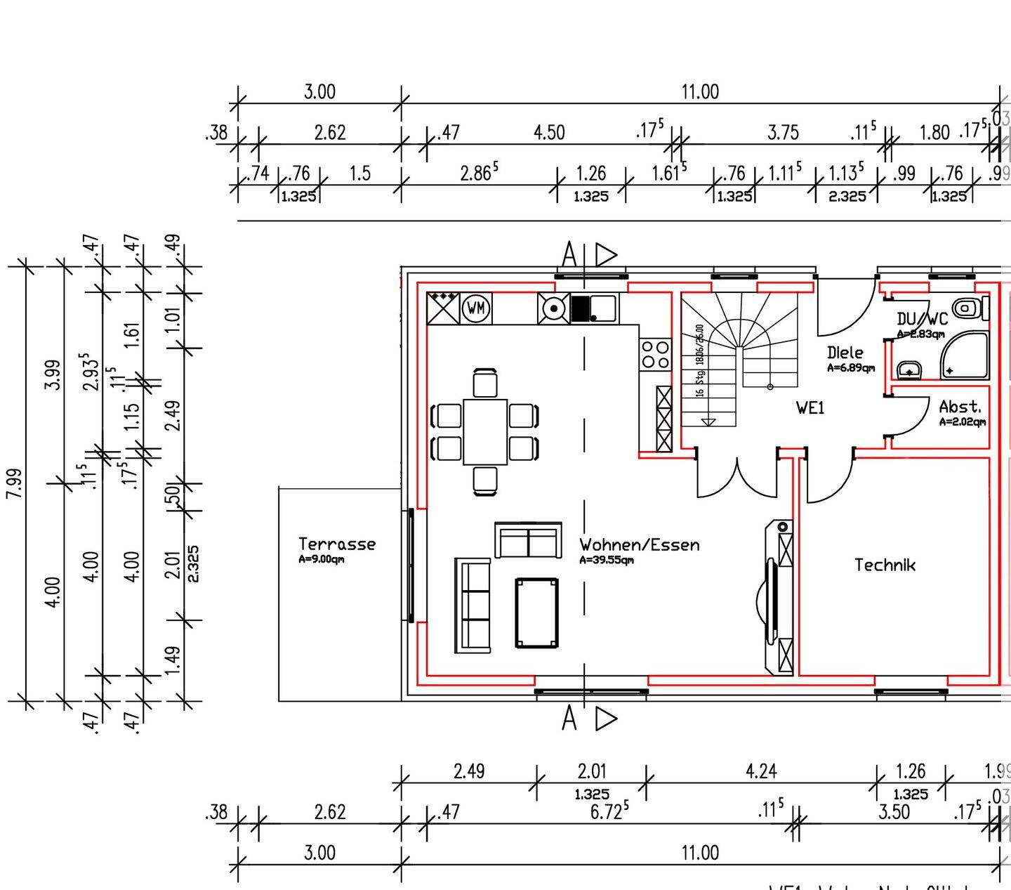
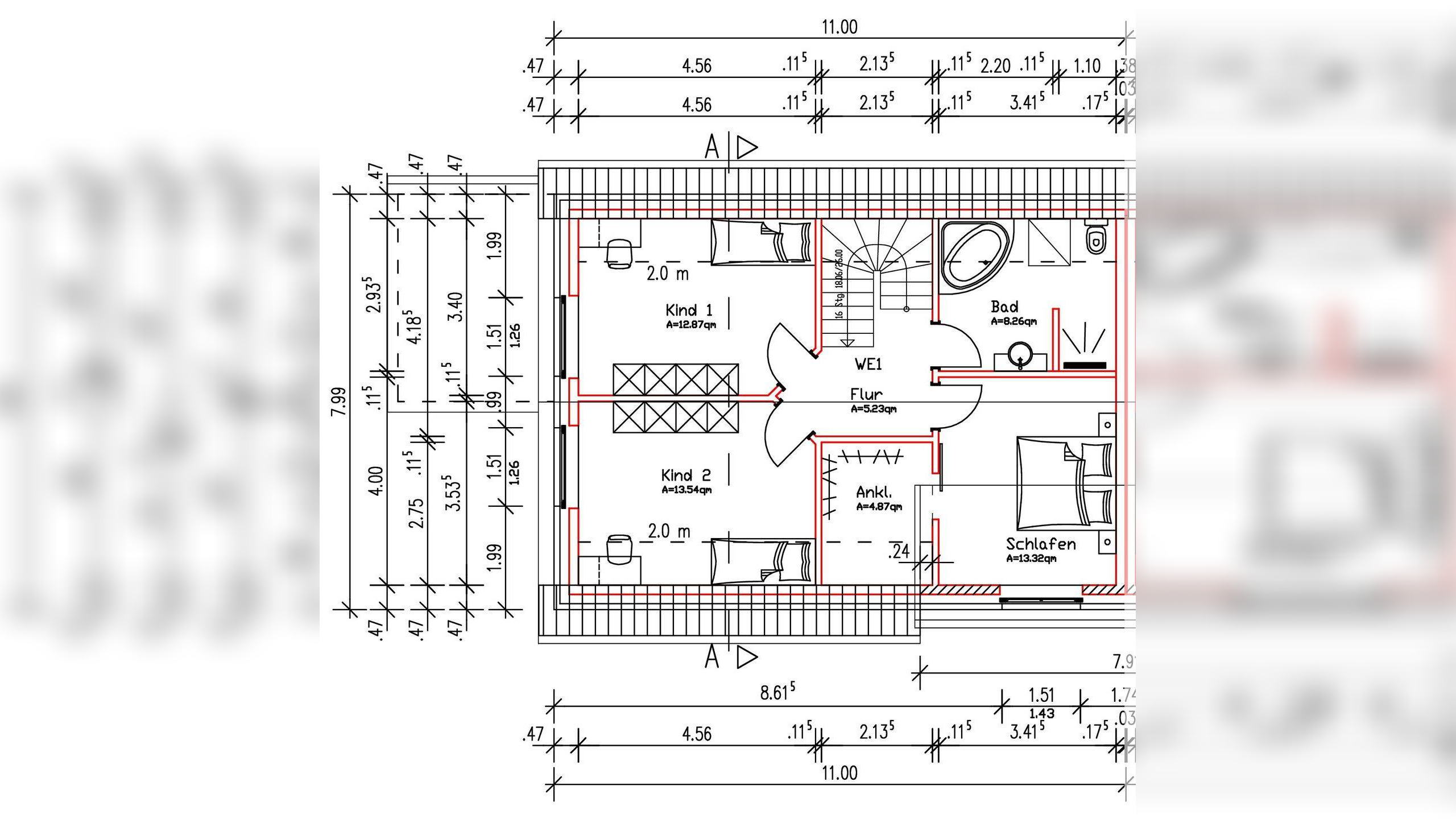
In einem ruhigen, familienfreundlichen Wohngebiet entsteht eine moderne Doppelhaushälfte, die zeitgemäßen Wohnkomfort, energieeffiziente Technik und ansprechende Architektur in idealer Weise vereint. Die Immobilie befindet sich aktuell in der Planungs- bzw. Vorbereitungsphase und wird demnächst gebaut. Optional steht auch die zweite Haushälfte zum Verkauf - ideal für Mehrgenerationenwohnen oder als Kapitalanlage.Die Grundstücke sind nach dem Wohnungseigentumsgesetz (WEG) geteilt - die Grundbücher sind entsprechend angelegt.Beim Betreten des Hauses gelangen Sie in eine freundliche Diele, die Ihnen Zugang zu allen Räumen im Erdgeschoss bietet. Ein Tageslicht-Gäste-WC mit bodengleicher Dusche, eine praktische Abstellkammer sowie ein Hauswirtschaftsraum mit Anschlüssen für Waschmaschine und Trockner sorgen für Funktionalität im Alltag. Gegen Aufpreis kann der Haustechnikraum als separater Anbau realisiert werden - dadurch gewinnen Sie im Erdgeschoss zusätzlichen Wohnraum, der individuell nutzbar ist.Der offen gestaltete Wohn- und Essbereich mit rund 40 m² bildet das Herzstück des Hauses. Große Fensterflächen und ein direkter Zugang zur Terrasse schaffen ein helles, freundliches Ambiente. Ihre neue Küche planen und realisieren Sie ganz nach Ihren Wünschen - sie ist nicht im Kaufpreis enthalten und kann so optimal auf Ihre Bedürfnisse abgestimmt werden.Eine elegante, massive Holztreppe führt ins Dachgeschoss, wo Sie ein großzügiges Elternschlafzimmer mit angrenzender Ankleide erwartet. Zwei weitere Zimmer bieten vielseitige Nutzungsmöglichkeiten - ob als Kinderzimmer, Büro oder Gästezimmer. Besonders hervorzuheben ist die attraktive Dachgaube, die nicht nur zusätzlichen Raum schafft, sondern auch für mehr Licht und Wohnqualität sorgt. Das moderne Badezimmer ist mit einer ebenerdigen Dusche, einem Fenster und zeitgemäßer Ausstattung versehen.Beheizt wird das Gebäude über eine leistungsstarke Wärmepumpe der Firma Remko. Die Fußbodenheizung sorgt für angenehme Temperaturen und ein behagliches Wohnklima in allen Räumen. Eine zentrale Lüftungsanlage mit Wärmerückgewinnung garantiert dauerhaft frische Luft und hilft, Heizkosten zu senken.Der Spitzboden bietet Ihnen zusätzlichen Stauraum - ideal für Dinge, die Sie nicht täglich benötigen, aber dennoch ordentlich verstauen möchten.Die äußere Gestaltung überzeugt durch eine zeitlose Klinkerfassade, die nicht nur optisch ansprechend, sondern auch besonders pflegeleicht und langlebig ist. Die Kombination aus robuster Bauweise und hochwertiger Verblendung unterstreicht den Wert und Charakter des Hauses und sorgt für ein dauerhaft gepflegtes Erscheinungsbild.Fazit:Diese hochwertige Doppelhaushälfte vereint klassisches Erscheinungsbild mit moderner Technik und cleverem Grundriss. Die massive Klinkerfassade, die charmante Dachgaube und die Möglichkeit, auch die zweite Haushälfte zu erwerben, machen dieses Neubauprojekt besonders attraktiv. Gestalten Sie Ihr neues Zuhause nach Ihren Vorstellungen - wir beraten Sie gerne persönlich!
So funktioniert es
- Alle neuen Anzeigen matchen wir kostenlos mit Deinen Suchparametern.
- Passende Angebote senden wir Dir in einer E-Mail pro Tag.
- Du kannst auch verschiedene Suchen anlegen und Dich jederzeit abmelden. Mehr dazu
Wir haben soeben eine E-Mail mit Deinem Suchauftrag an Dich geschickt. – Klicke in dieser Mail auf den Bestätigungslink und schon geht's los. Prüfe ggf. auch Deinen Spamordner.
Es gab ein Problem beim Absenden Deiner E-Mail-Adresse. Bitte versuche es erneut.
WARNUNG: Bitte bestätige Deine E-Mail-Adresse, um regelmäßige Updates zu erhalten.