Kaufpreis 2.499.000 €
Zimmer 20
Größe 560 m²
90403 Nürnberg
Objektdaten
Veröffentlicht am: 25. März 2026
Energieausweis: Liegt bei der Besichtigung vor
Danke! Bitte bestätige Deine E-Mail-Adresse – wir haben Dir soeben eine Mail geschickt.
Es gab ein Problem beim Absenden. Bitte versuche es erneut.
Bitte bestätige Deine E-Mail-Adresse, um Updates zu erhalten.
Objektbeschreibung
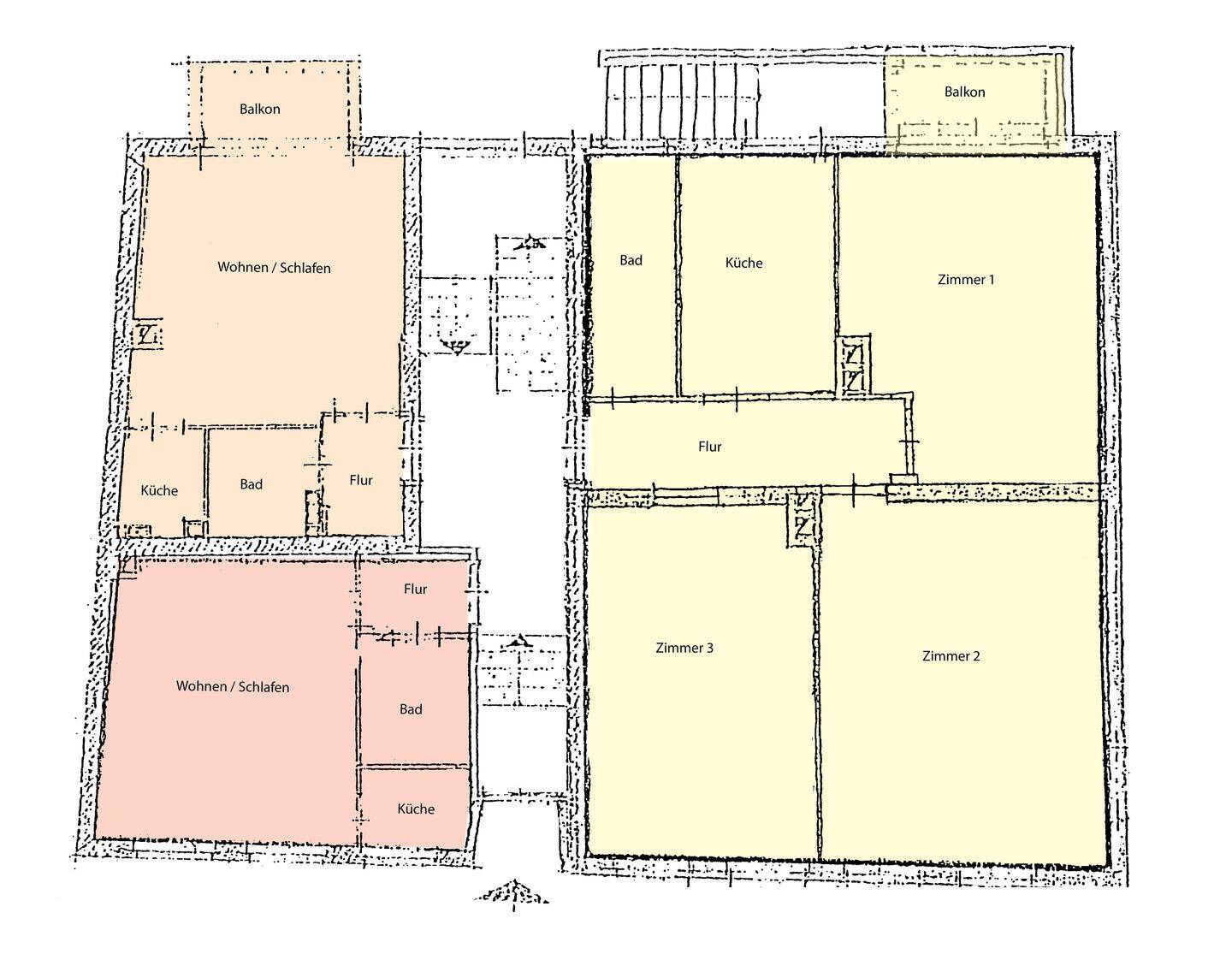
Das Objekt befindet sich in absoluter Innenstadtlage und besteht aus zwei Gebäudeteilen, die über das Treppenhaus miteinander verbunden sind.Das Gebäude verfügt über einen Innenhof in dem 5 Parkplätze vorhanden sind, die zu dem Anwesen gehören. Weitere 2 Parkplätze befinden sich an der StraßeGeschosse: Keller, Souterrain, EG, 1. - 2. OG und DGEine Aufstockung des Objektes ist denkbar und würde die derzeitige vermietbare Fläche von 560 m² auf ca. 680 m² erweitern.Die Wohnungen die auf der Seite des Innenhofes liegen verfügen über Balkone.Gesamte vermietbare Wohn- und Gewerbefläche: ca. 560 m² (erweiterbar auf ca. 680 m²)Grundstücksfläche: ca. 370 m²Heizungsanlage: teilweise Gas-Etagenheizung, teilweise Gas-EinzelöfenDas Objekt steht bereits komplett leer. Mit der Sanierung kann sofort begonnen werden.Energieausweis noch nicht vorhanden - ist bereits angefragt
So funktioniert es
- Alle neuen Anzeigen matchen wir kostenlos mit Deinen Suchparametern.
- Passende Angebote senden wir Dir in einer E-Mail pro Tag.
- Du kannst auch verschiedene Suchen anlegen und Dich jederzeit abmelden. Mehr dazu
Wir haben soeben eine E-Mail mit Deinem Suchauftrag an Dich geschickt. – Klicke in dieser Mail auf den Bestätigungslink und schon geht's los. Prüfe ggf. auch Deinen Spamordner.
Es gab ein Problem beim Absenden Deiner E-Mail-Adresse. Bitte versuche es erneut.
WARNUNG: Bitte bestätige Deine E-Mail-Adresse, um regelmäßige Updates zu erhalten.