Kaufpreis 138.000 €
Zimmer 2
Größe 62 m²
96117 Memmelsdorf
Objektdaten
Veröffentlicht am: 25. März 2026
Energieausweis: Liegt bei der Besichtigung vor
Danke! Bitte bestätige Deine E-Mail-Adresse – wir haben Dir soeben eine Mail geschickt.
Es gab ein Problem beim Absenden. Bitte versuche es erneut.
Bitte bestätige Deine E-Mail-Adresse, um Updates zu erhalten.
Objektbeschreibung
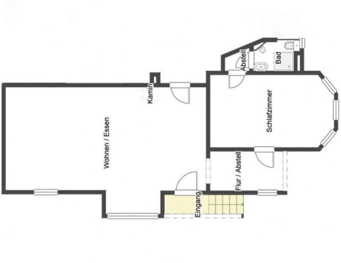
Diese vielseitig nutzbare Wohnung befindet sich im Souterrain eines im Jahr 1998 erbauten 3 Familienhauses, das sich am Ende einer ruhigen Sackgasse mit Wendehammer unmittelbar am Waldrand befindet. Die naturnahe Lage vermittelt ein angenehmes, ruhiges Wohngefühl und macht den Standort besonders für Menschen attraktiv, die die Nähe zur Natur und den Vorteil kurzer Wege zugleich schätzen.Beim Betreten eröffnet sich der Wohn und Essbereich mit rund 37 m², der Wohnen und Ankommen harmonisch verbindet. Der vordere Bereich lässt sich gemütlich als Wohnzone gestalten. Ein im Jahr 2015 neu angeschaffter Kaminofen sorgt dabei für wohlige Wärme und eine behagliche Atmosphäre.Im hinteren Teil des Raumes befindet sich die mitverkaufte Einbauküche, die sich funktional in das Raumkonzept einfügt. Vor der Küchenzeile bietet sich ideal Platz für eine Essgruppe. Zusätzlich lässt sich ein kleiner Arbeitsbereich gut integrieren, sodass dieser zentrale Raum vielseitig nutzbar ist und den Mittelpunkt des täglichen Lebens bildet.Rechterhand des Eingangs befindet sich der offen gehaltene Dielen und Flurbereich mit rund 6 m². Er eignet sich hervorragend als Garderobenzone und schafft eine strukturierte, wohnliche Gliederung zwischen dem Aufenthaltsbereich und dem privaten Rückzugsraum.Über diesen offenen Übergang gelangt man in das rund 16 m² große Schlafzimmer. Ein kleiner Vorraum mit etwa 1 m² zusätzlichem Stauraum führt weiter in das funktionale Badezimmer. Auf rund 3 m² finden sich eine Dusche, ein Handwaschbecken, ein WC sowie ein Urinal. Kompakt, pflegeleicht und praxistauglich ausgestattet.Dank des separaten Zugangs eignet sich diese Wohnung ideal als kompakte Lösung für einen 2 Personen Haushalt oder als komfortable Singlewohnung. Ebenso bietet sie sich hervorragend als Kapitalanlage mit guten Renditeaussichten an.
So funktioniert es
- Alle neuen Anzeigen matchen wir kostenlos mit Deinen Suchparametern.
- Passende Angebote senden wir Dir in einer E-Mail pro Tag.
- Du kannst auch verschiedene Suchen anlegen und Dich jederzeit abmelden. Mehr dazu
Wir haben soeben eine E-Mail mit Deinem Suchauftrag an Dich geschickt. – Klicke in dieser Mail auf den Bestätigungslink und schon geht's los. Prüfe ggf. auch Deinen Spamordner.
Es gab ein Problem beim Absenden Deiner E-Mail-Adresse. Bitte versuche es erneut.
WARNUNG: Bitte bestätige Deine E-Mail-Adresse, um regelmäßige Updates zu erhalten.