Kaufpreis 198.000 €
Zimmer 9
Größe 200 m²
21255 Tostedt
Objektdaten
Veröffentlicht am: 26. März 2026
Baujahr: 1960
Energieausweis: Liegt bei der Besichtigung vor
Danke! Bitte bestätige Deine E-Mail-Adresse – wir haben Dir soeben eine Mail geschickt.
Es gab ein Problem beim Absenden. Bitte versuche es erneut.
Bitte bestätige Deine E-Mail-Adresse, um Updates zu erhalten.
Objektbeschreibung
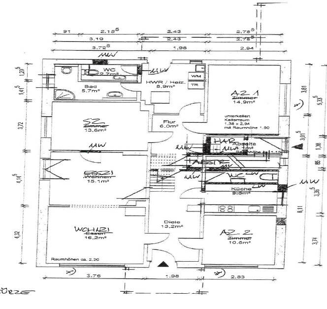
Dieses Einfamilienhaus in zentraler Lage von Tostedt bietet eine spannende Gelegenheit für alle, die nach einer soliden Kapitalanlage mit Entwicklungsspielraum suchen. Das Haus wurde 1960 gebaut, steht auf einem ca. 704 m² großen Grundstück und verfügt über rund 200 m² Wohnfläche, verteilt auf zwei Etagen.Derzeit wird die Immobilie von drei Mietparteien genutzt. Es bestehen drei separate Mietverträge, jedoch ohne in sich abgeschlossene Wohneinheiten - die Nutzung erinnert eher an eine Patchwork-Wohngemeinschaft. Die aktuelle Jahresnettokaltmiete beträgt 13.080?€ und bietet somit laufende Einnahmen bei gleichzeitigem Entwicklungspotenzial.Das Haus umfasst insgesamt neun Zimmer und bietet viele Möglichkeiten zur Umstrukturierung oder Neugestaltung. Eine Terrasse mit Blick in den Garten sorgt für zusätzlichen Wohnwert.Es besteht teils Renovierungs- und Modernisierungsstau. Besonders im Küchenbereich des Erdgeschosses treten nach starkem oder anhaltendem Regen wiederholt Feuchtigkeitsprobleme auf - hier sollte investiert werden, um langfristig attraktiven Wohnraum zu sichern.Das Objekt eignet sich sowohl für Kapitalanleger, die Mieteinnahmen und Wertsteigerung im Blick haben, als auch für Interessenten, die mittelfristig über eine Eigennutzung nachdenken. Eine spätere Kündigung wegen Eigenbedarfs ist grundsätzlich möglich - so könnte das Haus künftig auch vollständig selbst genutzt werden.Die Immobilie ist nach Vereinbarung verfügbar. Bei Interesse oder Fragen stehen wir gerne zur Verfügung.
So funktioniert es
- Alle neuen Anzeigen matchen wir kostenlos mit Deinen Suchparametern.
- Passende Angebote senden wir Dir in einer E-Mail pro Tag.
- Du kannst auch verschiedene Suchen anlegen und Dich jederzeit abmelden. Mehr dazu
Wir haben soeben eine E-Mail mit Deinem Suchauftrag an Dich geschickt. – Klicke in dieser Mail auf den Bestätigungslink und schon geht's los. Prüfe ggf. auch Deinen Spamordner.
Es gab ein Problem beim Absenden Deiner E-Mail-Adresse. Bitte versuche es erneut.
WARNUNG: Bitte bestätige Deine E-Mail-Adresse, um regelmäßige Updates zu erhalten.