Objektdaten
Objektbeschreibung
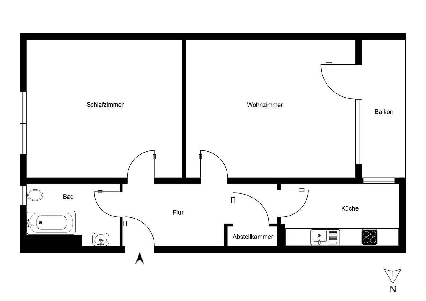
Gerne stellen wir Ihnen diese attraktive und helle 2-Zimmer-Wohnung mit Balkon im Erbbaurecht bis 2071 vor. Die Wohnung eignet sich ideal für Singles mit erhöhtem Platzbedarf, bietet jedoch auch hervorragende Voraussetzungen für Senioren oder Menschen mit eingeschränkter Mobilität sowie Rollstuhlfahrer. Ein ebenerdiges Duschbad sowie der stufenlose Zugang vom Fahrstuhl bis zur Wohnung ermöglichen ein komfortables und selbstständiges Wohnen. Für Rollstuhlfahrer besteht zusätzlich die Möglichkeit, über den Nebeneingang mit einem Lift in den Keller zu gelangen und von dort aus bequem den Aufzug des Hauses zu erreichen. Alle Räume sind separat vom Flur aus begehbar und bieten eine klare, funktionale Aufteilung. Vom großzügigen Wohnzimmer aus gelangen Sie auf den südwestlich ausgerichteten Balkon, der in den Sommermonaten als sonnige, mit Blumen gestaltete Oase oder als idealer Ort für entspannte Grillabende genutzt werden kann. Die Küche ist mit Einbaumöbeln ausgestattet und verfügt über ein Fenster, das für angenehmes Tageslicht sorgt. Das Badezimmer bietet eine moderne, ebenerdige und verglaste Dusche sowie ein kleines Fenster zur Belüftung. Im Flurbereich ist ausreichend Platz für einen Rollator, Rollstuhl oder Kinderwagen vorhanden. Das Schlafzimmer überzeugt mit einer Größe von ca. 18 m² und bietet vielfältige Einrichtungsmöglichkeiten. Ein zur Wohnung gehörendes Kellerabteil schafft zusätzlichen Stauraum für persönliche Gegenstände. Darüber hinaus steht ein günstig anmietbarer Stellplatz in unmittelbarer Nähe des Hauseingangs zur Verfügung und sorgt für zusätzliche Unabhängigkeit im Alltag.Der Erbbauzins von ca. 190 € pro Jahr wird monatlich im Wohngeld abgerechnet.Ähnliche Angebote
So funktioniert es
- Alle neuen Anzeigen matchen wir kostenlos mit Deinen Suchparametern.
- Passende Angebote senden wir Dir in einer E-Mail pro Tag.
- Du kannst auch verschiedene Suchen anlegen und Dich jederzeit abmelden. Mehr dazu




