Kaufpreis 358.500 €
Zimmer 3
Größe 86 m²
73432 Aalen
Objektdaten
Veröffentlicht am: 28. März 2026
Energieausweis: Liegt bei der Besichtigung vor
Danke! Bitte bestätige Deine E-Mail-Adresse – wir haben Dir soeben eine Mail geschickt.
Es gab ein Problem beim Absenden. Bitte versuche es erneut.
Bitte bestätige Deine E-Mail-Adresse, um Updates zu erhalten.
Objektbeschreibung
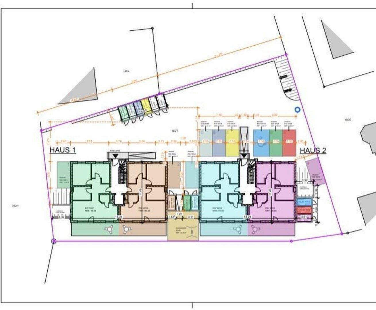
Willkommen ZuhauseStellen Sie sich vor, Sie kommen nach Hause - in eine Wohnung, die nicht nur modern und hochwertig ist, sondern sich vom ersten Moment an richtig anfühlt. Lichtdurchflutete Räume, eine durchdachte Architektur und das gute Gefühl, in eine nachhaltige Zukunft zu investieren.In der Wöhrstraße 7/1 im charmanten Stadtteil Unterkochen von Aalen entsteht bis August 2026 eine exklusive Neubauwohnung, die Lebensqualität, Energieeffizienz und Wohnkomfort perfekt vereint. Ob als neues Zuhause für Sie und Ihre Familie oder als wertbeständige Kapitalanlage - diese Immobilie bietet Ihnen mehr als nur vier Wände.ObjektbeschreibungDie hochwertig geplante 3-Zimmer-Wohnung befindet sich in einem modernen Neubau im Effizienzhaus-40-Standard. Hier wohnen Sie nicht nur stilvoll, sondern auch besonders energieeffizient und zukunftssicher.Dank innovativer Technik wie einer Luft-Wasser-Wärmepumpe und einer integrierten Photovoltaikanlage profitieren Sie langfristig von niedrigen Energiekosten und einem nachhaltigen Lebensstil.Ein besonderes Highlight: Nutzen Sie die Möglichkeit einer staatlichen Förderung von bis zu 100.000 € zu einem Zinssatz von nur ca. 0,96 % p.a. - eine seltene Chance, sich günstige Finanzierungskonditionen langfristig zu sichern.Ausstattung - Qualität, die man spürtEffizienzhaus 40 - zukunftssicher & energiesparendLuft-Wasser-WärmepumpePhotovoltaikanlage für nachhaltige EnergiegewinnungHochwertige 3-fach verglaste FensterPersonenaufzug - komfortabel und barrierearmModerner Neubau - ErstbezugEigener Stellplatz direkt am HausWohnungsdetails auf einen BlickWohnfläche: ca. 86 m²Zimmer: 32 ruhige SchlafzimmerGroßzügige, offene Wohnküche als Herzstück der Wohnung1 modernes Badezimmer1 StellplatzRaumgefühl & WohnkomfortDie offene Wohnküche bildet das Zentrum Ihres neuen Zuhauses - ein Ort für gemeinsame Abende, Gespräche und unvergessliche Momente. Große Fensterflächen lassen viel Tageslicht herein und schaffen eine warme, einladende Atmosphäre.Die beiden Schlafzimmer bieten Rückzugsorte für Ruhe und Erholung - ideal für Paare, kleine Familien oder das Homeoffice.
So funktioniert es
- Alle neuen Anzeigen matchen wir kostenlos mit Deinen Suchparametern.
- Passende Angebote senden wir Dir in einer E-Mail pro Tag.
- Du kannst auch verschiedene Suchen anlegen und Dich jederzeit abmelden. Mehr dazu
Wir haben soeben eine E-Mail mit Deinem Suchauftrag an Dich geschickt. – Klicke in dieser Mail auf den Bestätigungslink und schon geht's los. Prüfe ggf. auch Deinen Spamordner.
Es gab ein Problem beim Absenden Deiner E-Mail-Adresse. Bitte versuche es erneut.
WARNUNG: Bitte bestätige Deine E-Mail-Adresse, um regelmäßige Updates zu erhalten.