Kaufpreis 509.000 €
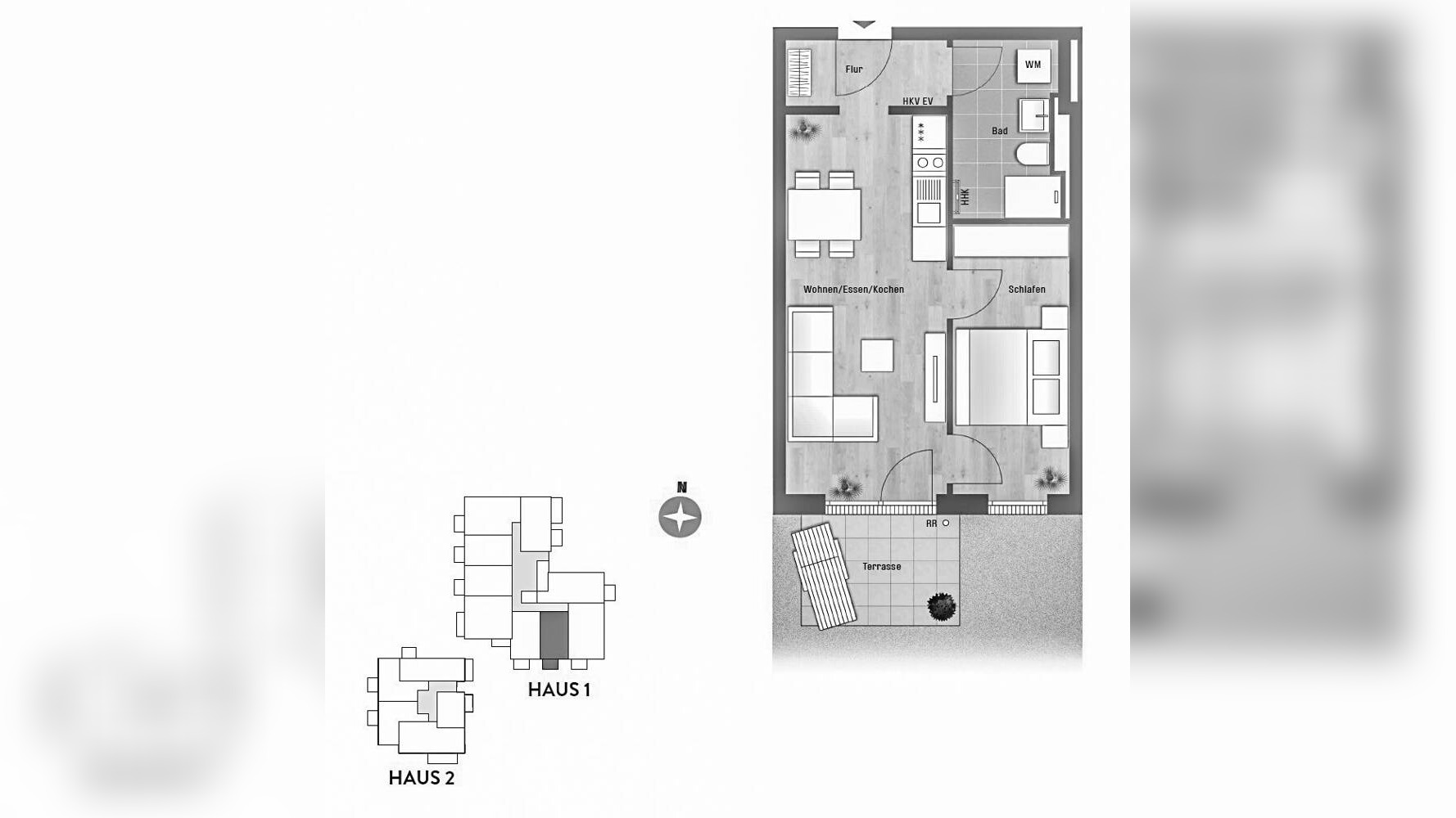
Zimmer 2
Größe 42 m²
81369 München
Objektdaten
Veröffentlicht am: 1. April 2026
Energieausweis: Liegt bei der Besichtigung vor
Danke! Bitte bestätige Deine E-Mail-Adresse – wir haben Dir soeben eine Mail geschickt.
Es gab ein Problem beim Absenden. Bitte versuche es erneut.
Bitte bestätige Deine E-Mail-Adresse, um Updates zu erhalten.
Objektbeschreibung
In beliebter Wohnlage von Sendling-Westpark wird in der kommenden Zeit ein attraktives Ensemble mit zwei stilvollen Wohnkomplexen errichtet. Die beiden Gebäudeteile werden in einen idyllischen, geschützten Innenhof eingebettet sein und sich durch das moderne, geradlinige Design ideal in die bestehende Nachbarschaft einfügen.ÜBERSICHT l AUFTEILUNG:.Neubau von 2 Mehrfamilienhäusern mit insgesamt 63 Wohnungen und einer Tiefgarage mit 64 Stellplätzen.1 - 4 Zimmer Wohnungen.Viele 1-2-Zimmer-Apartments (ideal zur Kapitalanlage).Ca. 24,61 m² bis ca. 94,39 m² Wohnfläche.Terrassen, Balkone oder Dachterrassen, je nach Lage und HimmelsrichtungOBJEKTDETAILS:.KfW-Effizienzhaus EH 55.Stufenlose Erreichbarkeit aller Wohnungen.Aufzug vom UG bis ins DG.Kellerabteile, Technikräume, Müllraum und Tiefgarage im 1. UG.Einzelstellplätze sowie Mehrfachparker für PKWs inklusive Vorrichtung für Ladestationen.Je ein vorgesehener Raum für Mobilitätshilfen in beiden Häusern.Geschützter Innenhof mit Kinderspielmöglichkeit.Großzügige und überdachte Fahrradstellplätze im Außenbereich.Begrünte Flachdächer als positiver Beitrag für das StadtklimaSTELLPLÄTZE:.Einzelparker für € 39.900,00.Mehrfachparker (2,00 m) für € 36.900,00.Mehrfachparker (1,75/1,80 m) für € 34.900,00Der aktuelle Energieausweis befindet sich in Erstellung und wird nachgereicht.Die Fertigstellung des Projekts ist für Herbst/Winter 2027 vorgesehen.Die ausführlich Objektbroschüre mit weiteren Detailangaben und die Preisliste erhalten Sie gerne auf Anfrage.
So funktioniert es
- Alle neuen Anzeigen matchen wir kostenlos mit Deinen Suchparametern.
- Passende Angebote senden wir Dir in einer E-Mail pro Tag.
- Du kannst auch verschiedene Suchen anlegen und Dich jederzeit abmelden. Mehr dazu
Wir haben soeben eine E-Mail mit Deinem Suchauftrag an Dich geschickt. – Klicke in dieser Mail auf den Bestätigungslink und schon geht's los. Prüfe ggf. auch Deinen Spamordner.
Es gab ein Problem beim Absenden Deiner E-Mail-Adresse. Bitte versuche es erneut.
WARNUNG: Bitte bestätige Deine E-Mail-Adresse, um regelmäßige Updates zu erhalten.