Kaufpreis 677.000 €
Zimmer 4
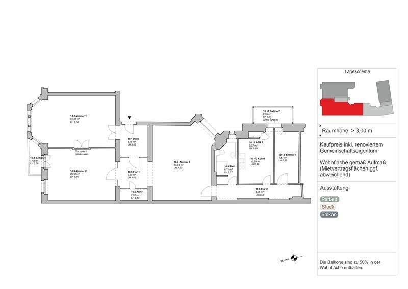
Größe 150 m²
10961 Berlin
Objektdaten
Veröffentlicht am: 1. April 2026
Energieausweis: Liegt bei der Besichtigung vor
Danke! Bitte bestätige Deine E-Mail-Adresse – wir haben Dir soeben eine Mail geschickt.
Es gab ein Problem beim Absenden. Bitte versuche es erneut.
Bitte bestätige Deine E-Mail-Adresse, um Updates zu erhalten.
Objektbeschreibung
Aus Liebe zum Altbau - aus Leidenschaft für ArchitekturIn Zusammenarbeit mit dem erfahrenen Immobilienentwickler und Architektenteam ist ein technisch und stilistisch hoch anspruchsvolles Objekt erstellt worden. Die Qualität und Ausführung der Baumaßnahmen ist in energetischer, optischer und pragmatischer Hinsicht beispielhaft für eine gelungene Altbausanierung.Beispielhaft sind hier die Wärmedämmung an den Hoffassaden, der Einbau eines Aufzugs am Vorderhaus, die Errichtung von neuen Hofbalkonen, die neue Gaszentralheizung und das Verlegen von neuen Strangleitungen sowie die Erneuerung der gesamten Haustechnik zu nennen.Neben den technischen Merkmalen wurde besonderen Wert auf die Erhaltung der Altbausubstanz gelegt. Um die Authentizität des Gründerzeitbaus zu wahren, wurden die Gemeinschaftsflächen wie Portal, Foyer, Treppenhäuser und Wohnungseingangstüren in ihrer Originalität erhalten und aufwendig aufgearbeitet. Die alten Fenster wurden durch neue Holzfenster entsprechend der Form und Gestaltung des Altbaubestands mit Dreifachverglasung ersetzt. Im straßenseitigen Bereich mit Schallschutzklasse 3.Eine umfassendere Beschreibung der vielseitigen Maßnahmen können Sie der vollständigen Baubeschreibung entnehmen, die wir Ihnen auf Wunsch gerne zukommen lassen.Das Objekt wurde 2019 aufwendig saniert und in Wohneigentumseinheiten aufgeteilt. Die Baumaßnahmen stehen aktuell kurz vor dem Abschluss.
So funktioniert es
- Alle neuen Anzeigen matchen wir kostenlos mit Deinen Suchparametern.
- Passende Angebote senden wir Dir in einer E-Mail pro Tag.
- Du kannst auch verschiedene Suchen anlegen und Dich jederzeit abmelden. Mehr dazu
Wir haben soeben eine E-Mail mit Deinem Suchauftrag an Dich geschickt. – Klicke in dieser Mail auf den Bestätigungslink und schon geht's los. Prüfe ggf. auch Deinen Spamordner.
Es gab ein Problem beim Absenden Deiner E-Mail-Adresse. Bitte versuche es erneut.
WARNUNG: Bitte bestätige Deine E-Mail-Adresse, um regelmäßige Updates zu erhalten.