Objektdaten
Objektbeschreibung
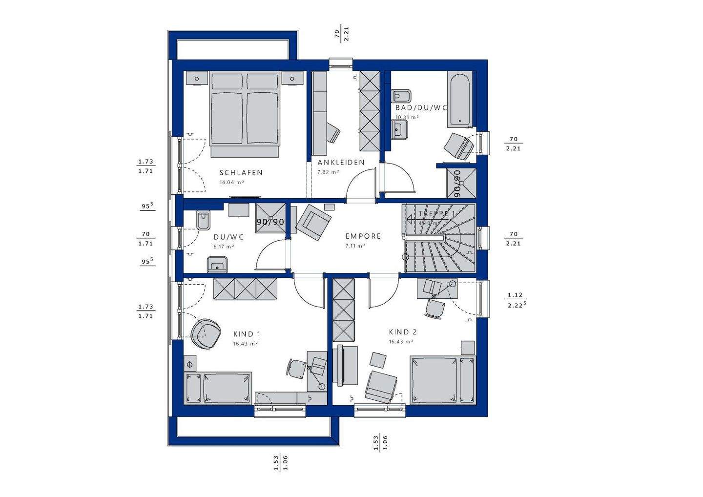
Individuelle Architektur, inspirierendes Design und ein zeitgemäßes Raumkonzept - das EVOLUTION 164 verbindet aufeinzigartige Weise Qualität und fachliches Know-how mit modernem Wohnen. Dazu gehört ganz selbstverständlich dieMöglichkeit, das EVOLUTION 164 mit ergänzenden Architektur-Bauteilen selbst zu designen und auf diese Weise seinTraumhaus Wirklichkeit werden zu lassen.Moderne Architekturelemente wie Übereckverglasungen, Akzente in Holz und Farbe, Erker, Giebel, Balkone und Glasfassadensind Design-Highlights, die ein designbewusstes Statement setzen. Unterschiedliche Dachformen, wie zum Beispiel einSattel- oder Walmdach, und Wohnraumerweiterungen sind weitere Designoptionen, mit denen das EVOLUTION 164 zumpersönlichen Traumhaus wird.So stilvoll das EVOLUTION 164 bereits außen ist, so komfortabel und designbewusst sind die Wohnräume im Inneren.Besonders schön sind die offen gehaltenen Räume im Erdgeschoss. Sie schaffen im EVOLUTION 164 ein einzigartigesWohngefühl.Ähnliche Angebote
So funktioniert es
- Alle neuen Anzeigen matchen wir kostenlos mit Deinen Suchparametern.
- Passende Angebote senden wir Dir in einer E-Mail pro Tag.
- Du kannst auch verschiedene Suchen anlegen und Dich jederzeit abmelden. Mehr dazu




