Objektdaten
Objektbeschreibung
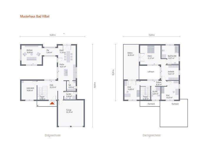
Ausgezeichnet mit dem German Design Award steht "Bad Vilbel" für inspirierende Architektur, optimale Grundstücksnutzung und ein Höchstmaß an Energieeffizienz.An das großzügige Hauptgebäude mit Satteldach schließt sich im Erdgeschoss der kubistische Anbau an, der vielfältige Nutzungsmöglichkeiten bietet. Durch die Teilung der Dachflächen entsteht das Herzstück des Hauses: das Atrium im Stile römischer Architektur. Bodentiefe Fenster und Schiebetüren verbinden drinnen mit draußen und sorgen für reichlich Lichteinfall. Hier trifft man sich gerne!Ähnliche Angebote
So funktioniert es
- Alle neuen Anzeigen matchen wir kostenlos mit Deinen Suchparametern.
- Passende Angebote senden wir Dir in einer E-Mail pro Tag.
- Du kannst auch verschiedene Suchen anlegen und Dich jederzeit abmelden. Mehr dazu




