Objektdaten
Objektbeschreibung
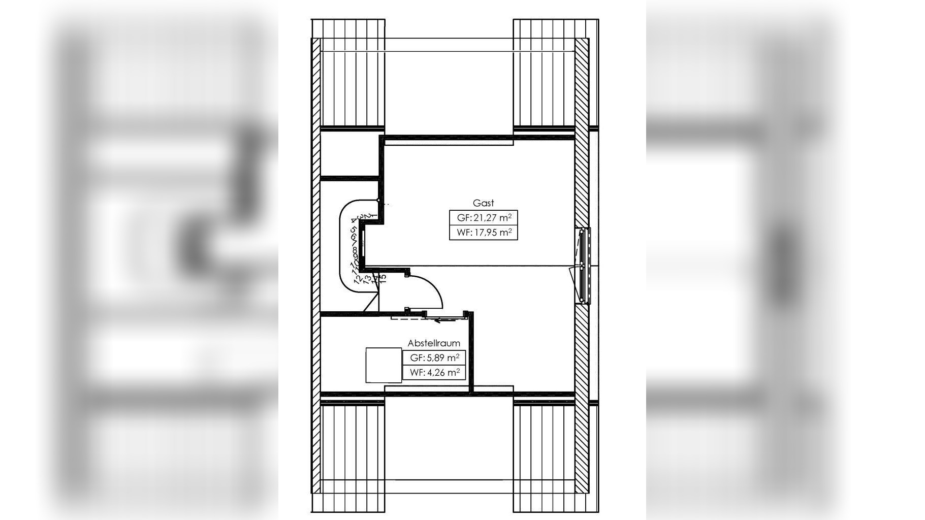
* PROVISIONSFREI FÜR DEN KÄUFER* Sehr niedriger Energieverbrauch dank Effizienzklasse A+* Zum Verkauf stehen drei Reihenhäuser: Zwei Eckhäuser und ein Mittelhaus* Baubeginn Mai 2026* Fertigstellung Ende 2026/Anfang 2027* Die Häuser sind nicht unterkellert* Zu jedem Haus gehören zwei Kfz-Stellplätze* Ausstattungshighlights: Isolierverglasung mit elektrischen Rollos, Fußbodenheizung, Wärmepumpe ...... * Eine detaillierte Baubeschreibung kann jederzeit angefordert werden* Hauswirtschaftsraum im Erdgeschoss mit allen Anschlüssen* Separates Gäste-WC* Tageslichtbad mit Wanne, Dusche und WC* Vor-Ort-Besichtigungen können jederzeit durchgeführt werden* Zum Haus gehört ein großzügiger Garten zzgl. Terrasse* Ein vorläufiger Energieausweis ist in ArbeitSo funktioniert es
- Alle neuen Anzeigen matchen wir kostenlos mit Deinen Suchparametern.
- Passende Angebote senden wir Dir in einer E-Mail pro Tag.
- Du kannst auch verschiedene Suchen anlegen und Dich jederzeit abmelden. Mehr dazu




