Objektdaten
Objektbeschreibung
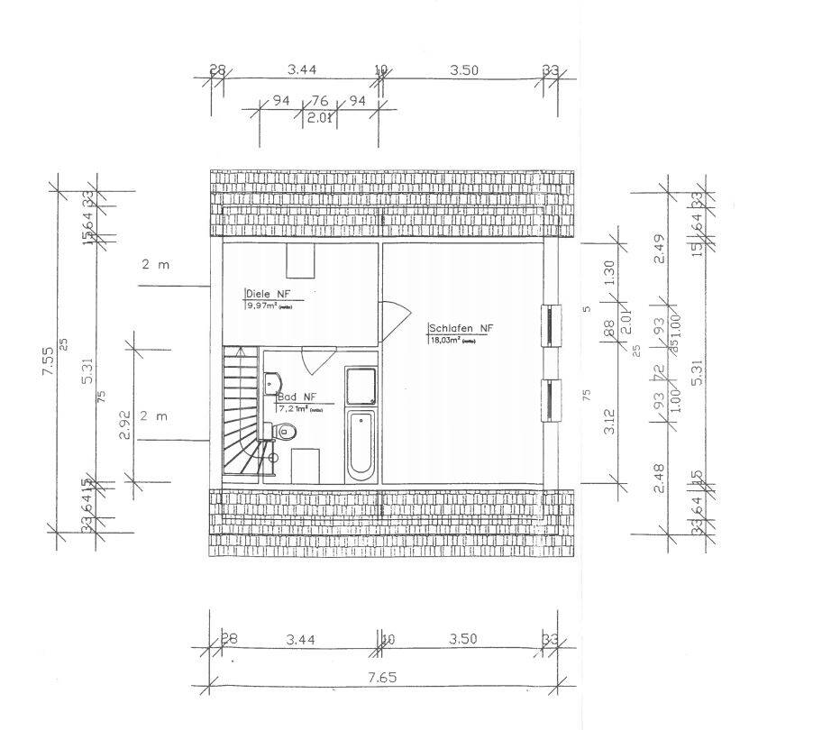
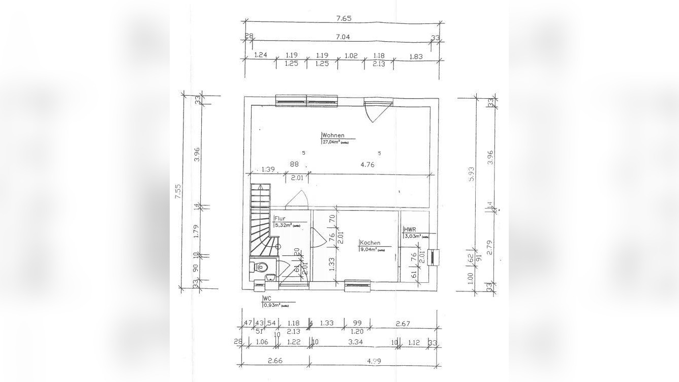
Die angebotene Doppelhaushälfte aus dem Jahre 1958 befindet sich auf einem großzügigen Grundstück mit ca. 1.618 m² und bietet insbesondere für Paare oder Einzelpersonen ein attraktives Zuhause mit viel Platz im Außenbereich. Das Haus präsentiert sich in einem modernisierten und bezugsfertigen Zustand. Im Erdgeschoss befinden sich das großzügige Wohnzimmer sowie die Küche, die bereits mit einer Einbauküche inklusive Kombi-Kühl-/Gefriergerät sowie zusätzlichem Gefrierschrank ausgestattet und im Kaufpreis enthalten ist. Über die Treppe gelangt man in das Obergeschoss. Hier befinden sich ...Ähnliche Angebote
So funktioniert es
- Alle neuen Anzeigen matchen wir kostenlos mit Deinen Suchparametern.
- Passende Angebote senden wir Dir in einer E-Mail pro Tag.
- Du kannst auch verschiedene Suchen anlegen und Dich jederzeit abmelden. Mehr dazu




