Helle 4-Zimmer-Wohnung mit ca. 98,63 m² Wohnfläche im 5. OG in Rheinau, Mannheim. Die Wohnung verfügt über einen Balkon mit elektrischer Markilux-Markise und einem enthaltenen Stellplatz.
Objektdaten
Objektbeschreibung
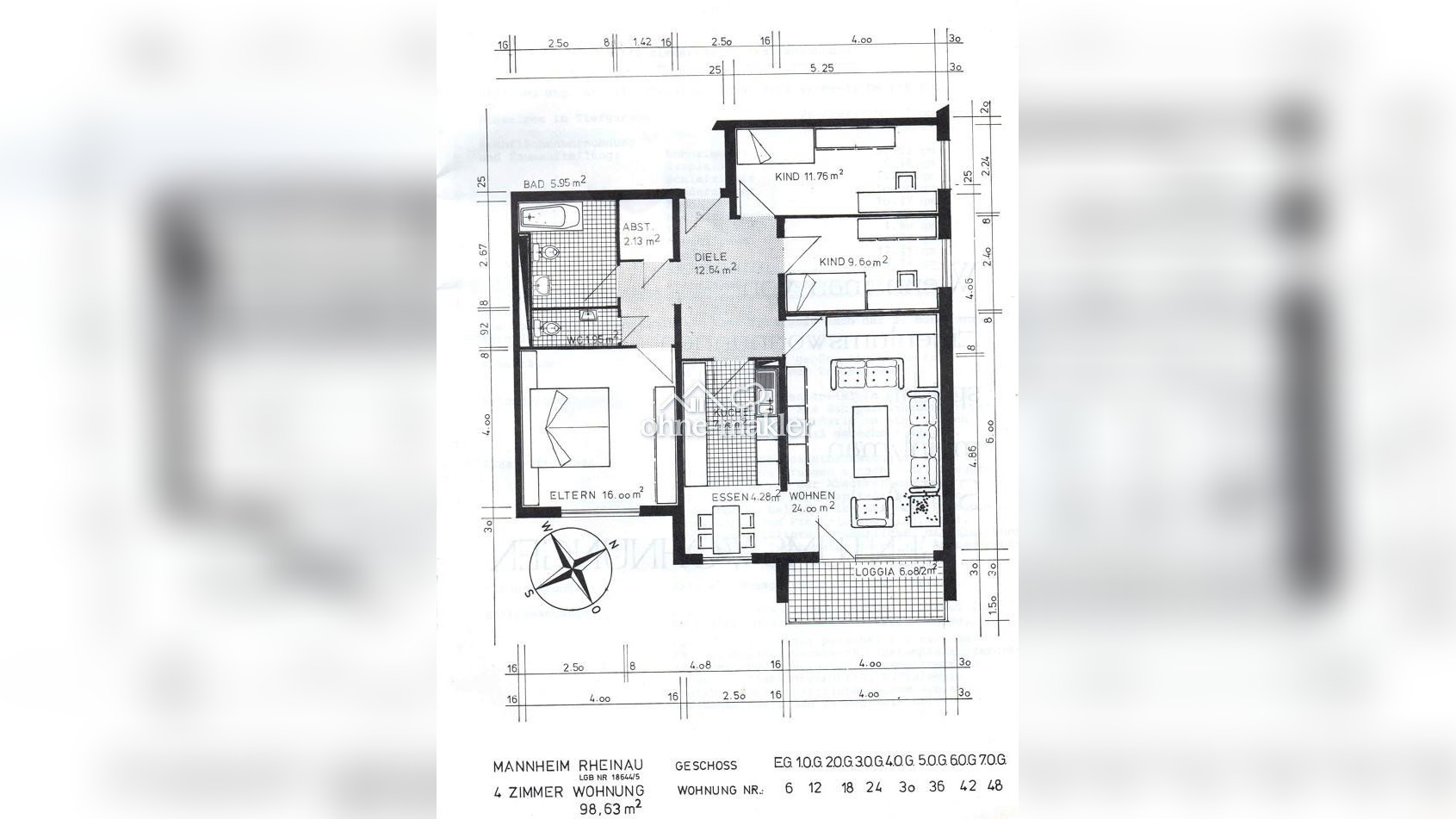
4-Zimmer Wohnung im 5. OG mit Balkon in Mannheim-Rheinau (Provisionsfrei!) VB Ein Stellplatz im Wert von 10.000 € ist im Preis enthalten. PROVISIONSFREI. Diese helle 4 Zimmer Wohnung mit ca. 98,63 m² Wohnfläche befindet sich im 5. Obergeschoss eines gepflegten Mehrfamilienhauses in Mannheim Rheinau. Sie verfügt über einen zum Entspannen einladenden Balkon, der mit einer hochwertigen elektrischen Markise der Marke Markilux ausgestattet ist. Ein Aufzug ermöglicht einen komfortablen Zugang zu allen Etagen. Ein eigener Stellplatz (mit im Preis enthalten), nur ca. 10 m vom Hauseingang entfernt, sorgt für bequemes Parken. Die Wohnung ist ab sofort verfügbar und bietet mit ihrer soliden Ausstattungsqualität eine gute Grundlage für Ihr neues Zuhause. Ein energetischer Pluspunkt: Die Wohnung wurde vor einigen Jahren mit neuen mehrfach verglasten Isolierfenstern und einer neuen Balkontür ausgestattet. In Kombination mit den ebenfalls modernisierten Heizkörpern und Thermostaten sorgt dies für eine hervorragende Wärmedämmung und ein angenehmes Wohnklima. -Aufzug -Balkon -Keller -Stellplatz (Auto) -Badewanne und Duschkabine •Baujahr: 1978 •Wohnfläche 98,63 m2 •Fernwärme •Energieverbrauchskennwert: 97,3 •Energieeffizienzklasse C •Nebenkosten/ Bewirtschaftungskosten: 430,93 € (inkl. Heizung (!), Wasser, Hausmeister, Müll, Strom, Versicherungen, Gartenpflege, Verwaltergebühren). •Instandhaltungsrücklage: Ein zusätzlicher Pluspunkt - Exklusiv für diese Wohnung wurde per 31.03.2025 bereits eine eigene Instandhaltungsrücklage in Höhe von 12.582,52 € aufgebaut. Monatliche Instandhaltungskosten belaufen sich auf 128,33 € •Hausverwaltung: Die Wohnanlage wird professionell durch die Treubau Verwaltung GmbH betreut. Termine zur Besichtigung: Donnerstag Abends oder Samstag Nachmittags. Bitte hierfür Kontakt aufnehmen. Adresse: Rheinauer Ring 51-53, 68219 Mannheim. Kaufangebote: Im Anschluss an die Besichtigung haben Sie auch die Möglichkeit, schriftliche Preis- oder Kaufangebote für die Wohnung abzugeben. Die Wohnung wird im unrenovierten Zustand verkauft und bietet damit eine ideale Grundlage, um sie ganz nach den eigenen Vorstellungen (siehe Beispielbild) zu renovieren und individuell zu gestalten, mit maximalem Spielraum für persönliche Ideen und kreative Konzepte. Lage Die angebotene Wohnung befindet sich im Stadtteil Rheinau in Mannheim. Rheinau ist ein lebendiger und familienfreundlicher Stadtteil mit guter Infrastruktur. Die öffentlichen Verkehrsmittel sind gut ausgebaut, mit verschiedenen Buslinien und der Straßenbahnlinie 6, die eine schnelle Anbindung im Stadtgebiet gewährleisten. Mehrere Schulen und Kindergärten sind in der Nähe vorhanden. Grüne Parks und Spielplätze bieten Erholungsmöglichkeiten für alle Altersgruppen. Bitte keine Makleranfragen! Dieses Objekt wird provisionsfrei ohne Makler verkauft. Alle Angaben ohne Gewähr. Irrtümer vorbehalten. Balkon, Keller, Fahrstuhl, Vollbad, Duschbad, TeppichbodenLagebeschreibung
Lage
Die angebotene Wohnung befindet sich im Stadtteil Rheinau in Mannheim. Rheinau ist ein lebendiger und familienfreundlicher Stadtteil mit guter Infrastruktur. Die öffentlichen Verkehrsmittel sind gut ausgebaut, mit verschiedenen Buslinien und der Straßenbahnlinie 6, die eine schnelle Anbindung im Stadtgebiet gewährleisten. Mehrere Schulen und Kindergärten sind in der Nähe vorhanden. Grüne Parks und Spielplätze bieten Erholungsmöglichkeiten für alle Altersgruppen.
Alle Angaben ohne Gewähr. Irrtümer vorbehalten.
Infrastruktur (im Umkreis von 5 km):
Apotheke, Lebensmittel-Discount, Allgemeinmediziner, Kindergarten, Grundschule, Hauptschule, Realschule, Gymnasium, Gesamtschule, Öffentliche Verkehrsmittel
Ähnliche Angebote
So funktioniert es
- Alle neuen Anzeigen matchen wir kostenlos mit Deinen Suchparametern.
- Passende Angebote senden wir Dir in einer E-Mail pro Tag.
- Du kannst auch verschiedene Suchen anlegen und Dich jederzeit abmelden. Mehr dazu




