Kaufpreis 540.000 €
Zimmer 3
Größe 81 m²
82205 Gilching
Objektdaten
Veröffentlicht am: 9. April 2026
Baujahr: 2002
Energieausweis: Liegt bei der Besichtigung vor
Danke! Bitte bestätige Deine E-Mail-Adresse – wir haben Dir soeben eine Mail geschickt.
Es gab ein Problem beim Absenden. Bitte versuche es erneut.
Bitte bestätige Deine E-Mail-Adresse, um Updates zu erhalten.
Objektbeschreibung
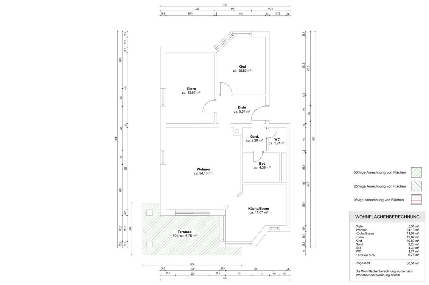
WINDISCH IMMOBILIEN präsentiert Ihnen eine helle 3-Zimmer-Erdgeschoss-Wohnung mit privatem Garten in zentraler Lage von Gilching. In einem freistehenden 6-Familienhaus im modernen Landhausstil, erbaut im Jahr 1985, genießen Sie einen angenehm ruhigen Wohnrahmen mit einem gepflegten, privaten Gartenbereich. Die Wohnfläche beträgt ca. 81 m² und verteilt sich über 3 Zimmer sowie ein vollwertiges Bad und ein separates Gäste-WC im Eingangsbereich. Die Architektur im Landhausstil, die freundlichen Lichtverhältnisse und die durchdachte Ausstattung verbinden sich zu einem stimmigen Gesamtbild mit hoher Wohnqualität.Die Wohnung selbst überzeugt durch eine durchdachte und alltagstaugliche Raumaufteilung sowie eine klare Struktur, die eine vielseitige Nutzung ermöglicht.Über den zentralen Eingangsbereich sind alle Räume direkt erreichbar, wodurch keine Fläche verloren geht und die Wohnung effizient genutzt werden kann. Der Wohnbereich stellt den Mittelpunkt dar und bietet ausreichend Platz für Wohnen und Essen. Von hier aus gelangen Sie direkt auf die Terrasse, die den Wohnraum sinnvoll erweitert und zusätzlichen Freiraum im Erdgeschoss schafft.Die Küche ist separat an den Wohnbereich angeordnet und bietet genügend Platz für eine funktionale Einrichtung. Zudem befindet sich hier eine gemütliche Essecke mit Blick in den Garten. Die beiden weiteren Zimmer sind gut geschnitten und flexibel nutzbar - ideal als Schlafzimmer, Kinderzimmer oder Homeoffice.Das innenliegende Badezimmer mit Duschwanne wird durch ein separates Gäste-WC im Eingangsbereich ergänzt. Eine Garderobennische im Eingangsbereich sorgt für zusätzlichen Stauraum.Außenbereich - Terrasse und Garten mit Süd-AusrichtungDie Terrasse ist direkt vom Wohnbereich aus zugänglich und erweitert den Wohnraum angenehm nach außen. Dank der seitlichen Verglasung ist sie windgeschützt und lässt sich über weite Teile des Jahres gut nutzen.Der Garten überzeugt durch seine Süd-Ausrichtung und bietet dadurch optimale Lichtverhältnisse sowie viele Sonnenstunden. Eine Sichtschutzhecke sorgt für Privatsphäre und schafft einen geschützten Rückzugsort im Grünen.Die Fläche ist liebevoll aber dennoch pflegeleicht gehalten, ohne auf Aufenthaltsqualität zu verzichten. Ein praktisches Gartenhäuschen bietet zusätzlichen Stauraum für Geräte und sorgt für Ordnung im Außenbereich.Untergeschoss - Praktischer Stauraum und direkter Zugang zur TiefgarageIm Untergeschoss steht Ihnen ein eigener Kellerraum zur Verfügung, der zusätzlichen Stauraum für Vorräte und persönliche Gegenstände bietet.Ergänzt wird das Raumangebot durch einen gemeinschaftlichen Waschraum, wo jede Partei ihre eigene Waschmaschine anschließen kann. Ein besonderer Vorteil ist der direkte Zugang zur Tiefgarage vom Untergeschoss aus. Hier verfügen Sie über eine eigene, abgeschlossene Garage mit Tor, was zusätzlichen Komfort und ein hohes Maß an Sicherheit bietet. Kurze Wege - insbesondere bei schlechtem Wetter - machen den Alltag deutlich angenehmer.UNSER FAZIT:Eine solide, gut geschnittene Erdgeschosswohnung mit sonniger Südterrasse, eigenem Garten und klarer Raumaufteilung. Die Kombination aus funktionalem Grundriss und der zentralen Lage machen diese Wohnung zu einem echten Wohntraum - sowohl zur Eigennutzung als auch als Kapitalanlage.Besonders hervorzuheben ist die ebenerdige Lage im Erdgeschoss, die die Wohnung vor allem für ältere Menschen oder Personen mit eingeschränkter Mobilität äußerst attraktiv macht. Durch die zentrale Lage sind zudem alle wichtigen Einrichtungen des täglichen Bedarfs bequem und schnell erreichbar.
So funktioniert es
- Alle neuen Anzeigen matchen wir kostenlos mit Deinen Suchparametern.
- Passende Angebote senden wir Dir in einer E-Mail pro Tag.
- Du kannst auch verschiedene Suchen anlegen und Dich jederzeit abmelden. Mehr dazu
Wir haben soeben eine E-Mail mit Deinem Suchauftrag an Dich geschickt. – Klicke in dieser Mail auf den Bestätigungslink und schon geht's los. Prüfe ggf. auch Deinen Spamordner.
Es gab ein Problem beim Absenden Deiner E-Mail-Adresse. Bitte versuche es erneut.
WARNUNG: Bitte bestätige Deine E-Mail-Adresse, um regelmäßige Updates zu erhalten.